GRIYA KASABLANKA PERMAI

ID Lokasi : SPE0220012021T001
SUMATERA BARAT, KAB PASAMAN BARAT, Lembah Melintang, Ujung Gading
RAFAKA GADING MANDIRI
Himpunan Pengembang Permukiman dan Perumahan Rakyat (HIMPERRA)


Status Rumah

Subsidi : 12 Unit

Terjual Subsidi : 32 Unit

Komersil : 0 Unit

Terjual Komersil : 3 Unit

Lihat Siteplan Digital

Peta Lokasi



Kantor Pemasaran

Air Talang, Jorong Kuamang no. 0 SUMATERA BARAT, KAB PASAMAN BARAT, Lembah Melintang, Ujung Gading

Telp : 0822-8539-6370

Email : rafakagadingmandiri@gmail.com

Website : www.rafaka.com

Foto Lokasi


foto gerbang perumahan GRIYA KASABLANKA PERMAI
Foto Gerbang/Jalan Utama
foto contoh rumah perumahan GRIYA KASABLANKA PERMAI
Foto Rumah Contoh
foto posisi tengah perumahan GRIYA KASABLANKA PERMAI
Foto Posisi Tengah Lokasi

Tipe Rumah


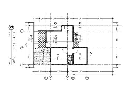
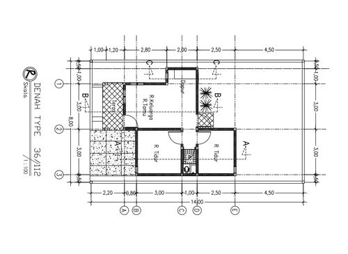
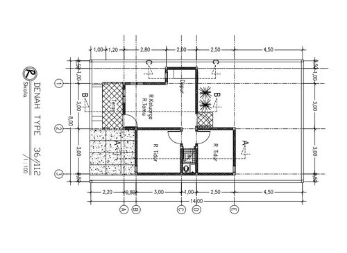
1. Tipe 36 (subsidi)
foto tampak rumah tipe 36 perumahan GRIYA KASABLANKA PERMAI
foto denah rumah tipe 36 perumahan GRIYA KASABLANKA PERMAI

Harga: Rp 150.000.000

Luas Bangunan: 36m 2

Luas Lahan: 112m 2

Kamar Tidur: 2

Kamar Mandi: 1

Spesifikasi Teknis

a. Atap
Rangka Baja Ringan

b. Dinding
Bata, Plester

c. Lantai & Pondasi
Keramik & Batu kali

2. Tipe Silver (komersil)
foto tampak rumah tipe Silver perumahan GRIYA KASABLANKA PERMAI
foto denah rumah tipe Silver perumahan GRIYA KASABLANKA PERMAI

Harga: Rp 150.000.000

Luas Bangunan: 36m 2

Luas Lahan: 120m 2

Kamar Tidur: 2

Kamar Mandi: 1

Spesifikasi Teknis

a. Atap
Seng, Baja Ringan

b. Dinding
Batu Bata, Plester

c. Lantai & Pondasi
Keramik & Batu kali

3. Tipe 36 (1kt) (subsidi)
foto tampak rumah tipe 36 (1kt) perumahan GRIYA KASABLANKA PERMAI
foto denah rumah tipe 36 (1kt) perumahan GRIYA KASABLANKA PERMAI

Harga: Rp 150.000.000

Luas Bangunan: 36m 2

Luas Lahan: 112m 2

Kamar Tidur: 1

Kamar Mandi: 1

Spesifikasi Teknis

a. Atap
Atap Seng, Rangka Baja Ringan

b. Dinding
Batu Bata, Plester

c. Lantai & Pondasi
Keramik & Batu Kali


Peta Lokasi


Kantor Pemasaran

Air Talang, Jorong Kuamang no. 0 SUMATERA BARAT, KAB PASAMAN BARAT, Lembah Melintang, Ujung Gading

Telp : 0822-8539-6370

Email : rafakagadingmandiri@gmail.com

Website : www.rafaka.com