SULTHAN RESIDENCE 3

ID Lokasi : SPE1020012025T001
SUMATERA BARAT, KAB PASAMAN BARAT, Luhak Nan Duo, Koto Baru
NARENDRA HUTAMA KARYA
Himpunan Pengembang Permukiman dan Perumahan Rakyat (HIMPERRA)


Status Rumah

Subsidi : 124 Unit

Terjual Subsidi : 6 Unit

Komersil : 0 Unit

Terjual Komersil : 0 Unit

Lihat Siteplan Digital

Peta Lokasi



Kantor Pemasaran

JALAN JAMBAK JALUR III no. 1 SUMATERA BARAT, KAB PASAMAN BARAT, Luhak Nan Duo, Koto Baru

Telp : 082174416019

Email : ptnarendrahutamakarya@gmail.com

Website :

Foto Lokasi


foto gerbang perumahan SULTHAN RESIDENCE 3
Foto Gerbang/Jalan Utama
foto contoh rumah perumahan SULTHAN RESIDENCE 3
Foto Rumah Contoh
foto posisi tengah perumahan SULTHAN RESIDENCE 3
Foto Posisi Tengah Lokasi

Tipe Rumah


1. Tipe Sulthan (subsidi)
foto tampak rumah tipe Sulthan perumahan SULTHAN RESIDENCE 3
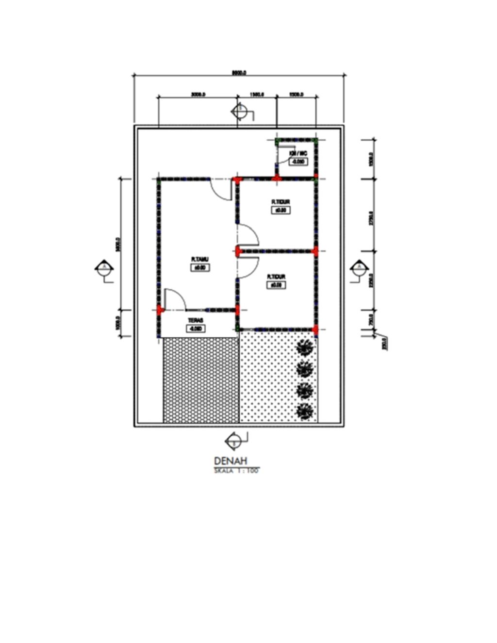
foto denah rumah tipe Sulthan perumahan SULTHAN RESIDENCE 3

Harga: Rp 166.000.000

Luas Bangunan: 36m 2

Luas Lahan: 100m 2

Kamar Tidur: 2

Kamar Mandi: 1

Spesifikasi Teknis

a. Atap
spandek gelombang

b. Dinding
sepablock (Semen Padang Interlock Brick)

c. Lantai & Pondasi
keramik & pondasi batu kali


Peta Lokasi


Kantor Pemasaran

JALAN JAMBAK JALUR III no. 1 SUMATERA BARAT, KAB PASAMAN BARAT, Luhak Nan Duo, Koto Baru

Telp : 082174416019

Email : ptnarendrahutamakarya@gmail.com

Website :