ID Lokasi : SPT0510032025T005
KALIMANTAN TENGAH, KAB KOTAWARINGIN TIMUR, Baamang, Baamang Hulu
PT ARSYINDO PUTRO MANUNGGAL
ASOSIASI PENGEMBANG DAN PEMASAR RUMAH NASIONAL
(ASPRUMNAS)
Subsidi : 31 Unit
Terjual Subsidi : 9 Unit
Komersil : 14 Unit
Terjual Komersil : 0 Unit
Lihat Siteplan DigitalJL. Cilik Riwut, masuk Jl. Hasupa, RT 013 RW 04, Bamamng - Sampit (komplek Perum Green Sagonta) no. - KALIMANTAN TENGAH, KAB KOTAWARINGIN TIMUR, Baamang, Baamang Hulu
Telp : 085856959858
Email : pt.arsyindoputro@gmail.com
Website : -


Harga: Rp 182.000.000
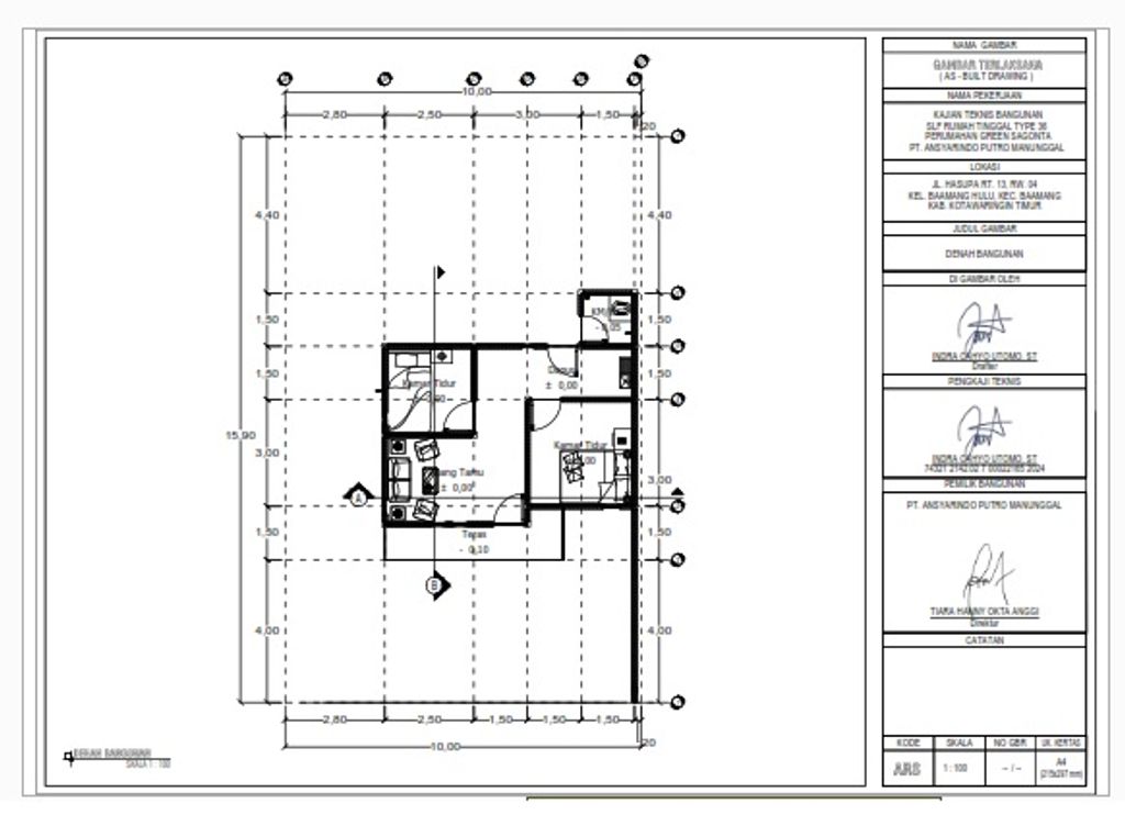
Luas Bangunan: 36m 2
Luas Lahan: 150m 2
Kamar Tidur: 2
Kamar Mandi: 1
a. Atap
Mulitrup, Spandek dan Rangka Kayu
b. Dinding
Dinding Batako, Plaster dan Acian, Cat dasar dan Cat lapis tembok
c. Lantai & Pondasi
Tanah Timbun, Cor Lantai dan Keramik Lantai & Cerucuk Kayu Galam, Cakar Ayam Cor beton, Mating-Mating kayu Galam dan Slop Cor beton. serta Tiang Rumah cor


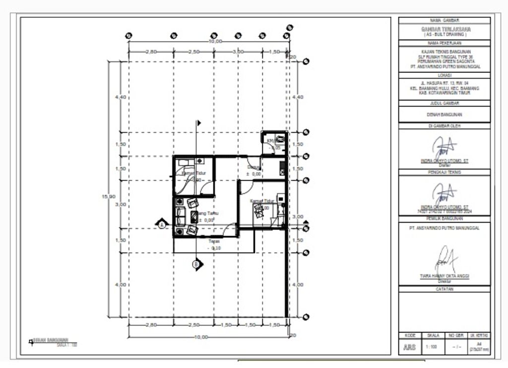
Harga: Rp 175.000.000
Luas Bangunan: 36m 2
Luas Lahan: 150m 2
Kamar Tidur: 2
Kamar Mandi: 1
a. Atap
Multirup, Spandek
b. Dinding
Batako, Plaster, Acian, Cat Tembok
c. Lantai & Pondasi
Tanah Uruk, Cor Lantai, Kerramik & Cerucuk Kayu Galam, Cakar Ayam cor beton, Slop Beton, Tiang Rumah Cor Beton


Harga: Rp 182.000.000
Luas Bangunan: 36m 2
Luas Lahan: 125m 2
Kamar Tidur: 2
Kamar Mandi: 1
a. Atap
Multirop Rangka Kayu
b. Dinding
dinding beton batako
c. Lantai & Pondasi
Keramik 40 x 40 & Cakar ayam dan slop cor
JL. Cilik Riwut, masuk Jl. Hasupa, RT 013 RW 04, Bamamng - Sampit (komplek Perum Green Sagonta) no. - KALIMANTAN TENGAH, KAB KOTAWARINGIN TIMUR, Baamang, Baamang Hulu
Telp : 085856959858
Email : pt.arsyindoputro@gmail.com
Website : -