ID Lokasi : SPT0510032025T006
KALIMANTAN TENGAH, KAB KOTAWARINGIN TIMUR, Baamang, Baamang Hulu
PT BINTANG WIJAYA MAKMUR
ALIANSI PENGEMBANG PERUMAHAN NASIONAL JAYA
(APPERNAS JAYA)
Subsidi : 34 Unit
Terjual Subsidi : 16 Unit
Komersil : 0 Unit
Terjual Komersil : 0 Unit
Lihat Siteplan Digital




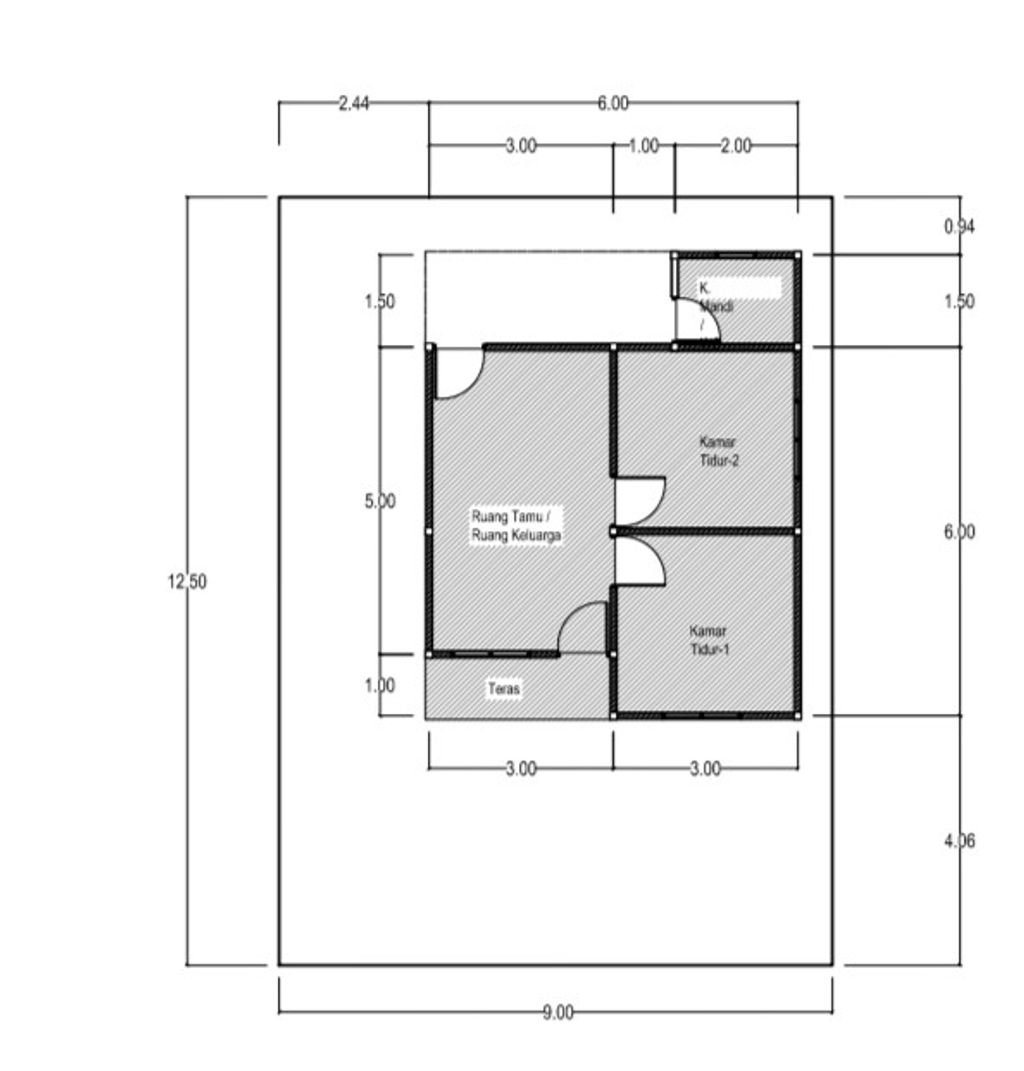
Harga: Rp 182.000.000
Luas Bangunan: 36m 2
Luas Lahan: 120m 2
Kamar Tidur: 2
Kamar Mandi: 1
a. Atap
RANGKA KAYU, ATAP MULTIROOF.
b. Dinding
BATAKO, PLESTER, ACI DAN CAT.
c. Lantai & Pondasi
KERAMIK LANTAI UK 40x40. & CAKAR AYAM.


Harga: Rp 182.000.000
Luas Bangunan: 36m 2
Luas Lahan: 120m 2
Kamar Tidur: 2
Kamar Mandi: 1
a. Atap
Multiroof
b. Dinding
Beton
c. Lantai & Pondasi
Keramik & Cerucuk Cakar Ayam