ID Lokasi : SRG0410012025T001
BANTEN, KOTA SERANG, Curug, Curug
PT JUMWAY GROUP INDONESIA
PERKUMPULAN ASOSIASI PENGEMBANG PERUMAHAN DAN PERMUKIMAN SELURUH INDONESIA
(APERSI)
Subsidi : 0 Unit
Terjual Subsidi : 0 Unit
Komersil : 71 Unit
Terjual Komersil : 120 Unit
Lihat Siteplan DigitalJL. SYEKH MOH. NAWAWI AL BANTANI no. 16 BANTEN, KOTA SERANG, Cipocok Jaya, Banjarsari
Telp : 087798008800
Email : primepointserang@gmail.com
Website : -

Harga: Rp 625.000.000
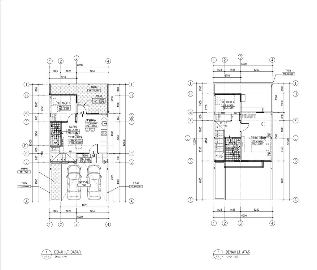
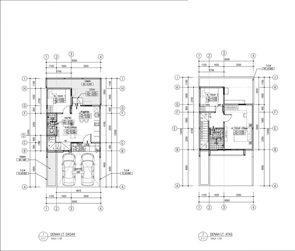
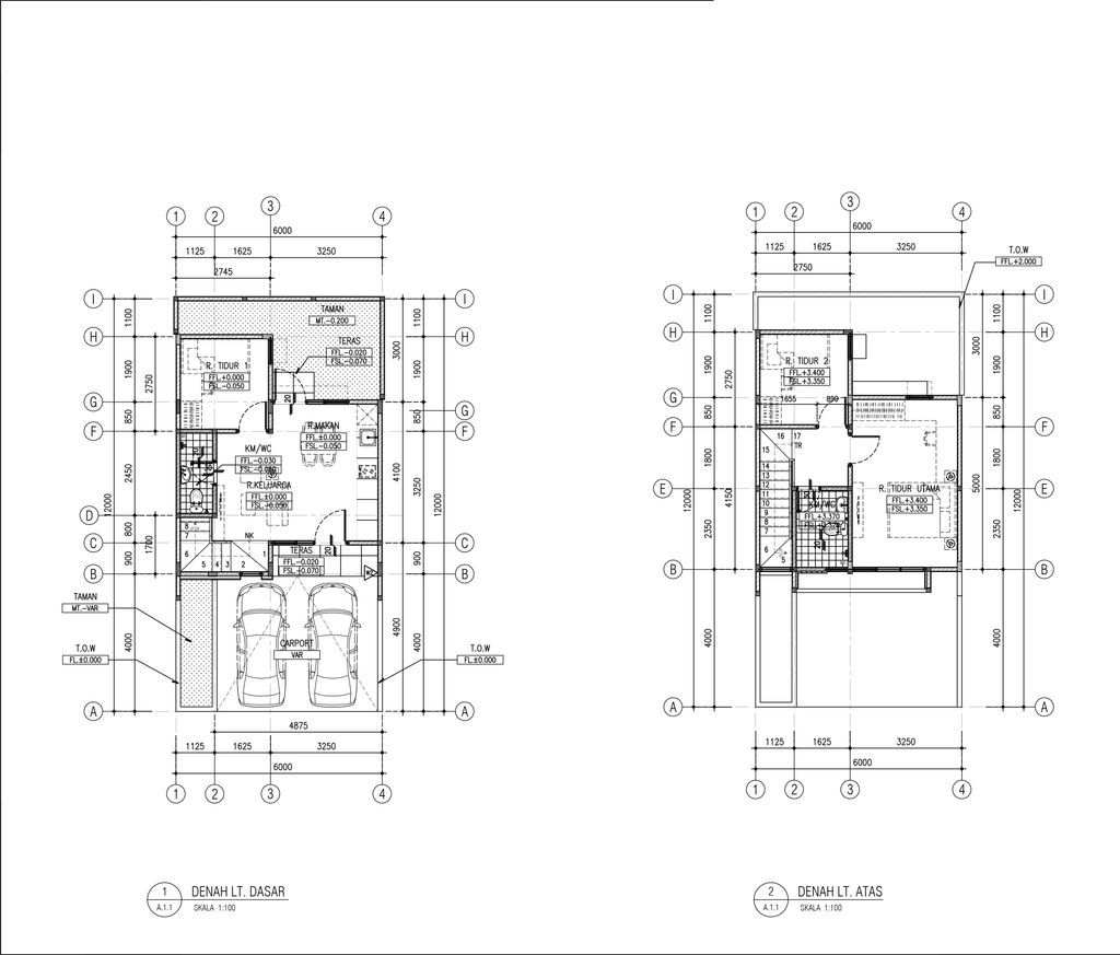
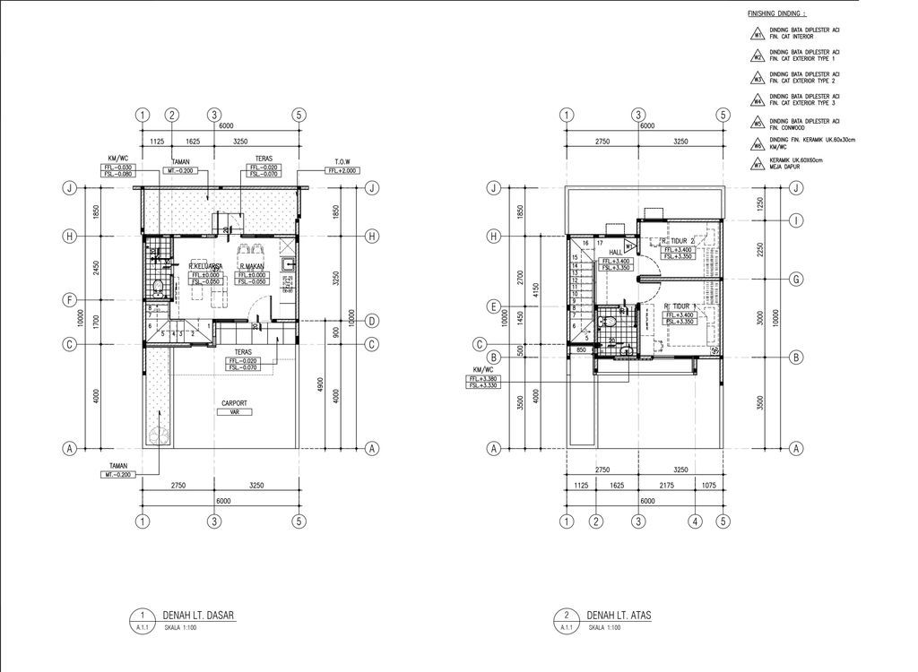
Luas Bangunan: 52m 2
Luas Lahan: 60m 2
Kamar Tidur: 2
Kamar Mandi: 2
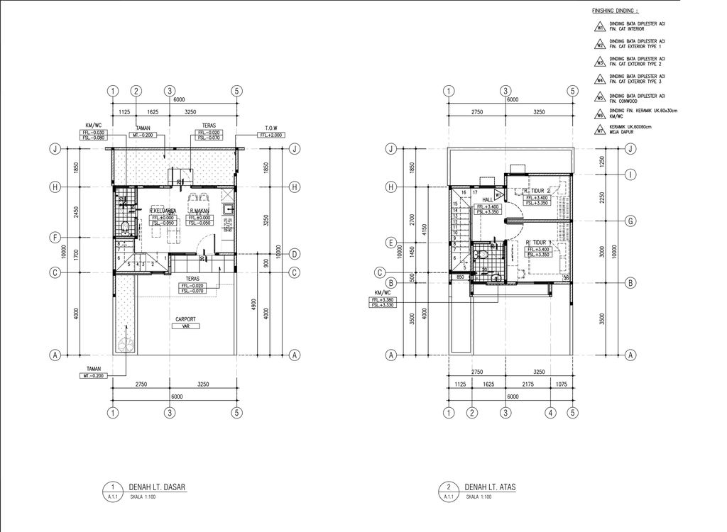
a. Atap
1. Genteng Beton
2. Ranga Kuda-Kuda Baja Ringan
3. Lapis Aluminium foil untuk peredam panas
b. Dinding
1. Dinding Bata Merah
2. Finish Plaster, Acian dan Cat
3. Dinding samping double
c. Lantai & Pondasi
1. Plat Lantai Beton
2. Keramik Lantai Utama 60x60 cm
3. Keramik Teras Depan & Belakang 40x50 cm
4. Keramik Lantai Toilet 30x30 cm
5. Keramik Dinding Toilet 30x60 cm & 1. Tiang Pancang Segitiga 28x28x28 cm
2. Dinding Batas Belakang Pondasi Lajur Batu Kali

Harga: Rp 860.000.000
Luas Bangunan: 68m 2
Luas Lahan: 108m 2
Kamar Tidur: 3
Kamar Mandi: 2
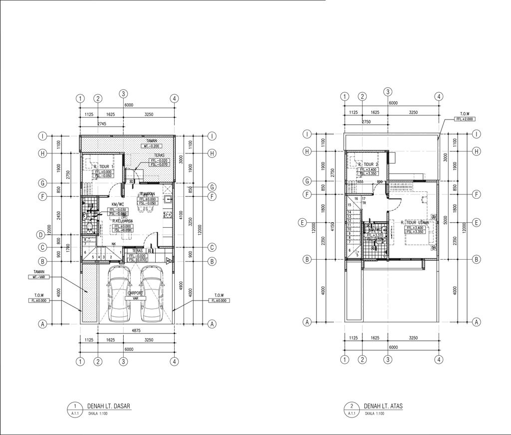
a. Atap
1. Genteng Beton
2. Ranga Kuda-Kuda Baja Ringan
3. Lapis Aluminium foil untuk peredam panas
b. Dinding
1. Dinding Bata Merah
2. Finish Plaster, Acian dan Cat
3. Dinding samping double
c. Lantai & Pondasi
1. Plat Lantai Beton
2. Keramik Lantai Utama 60x60 cm
3. Keramik Teras Depan & Belakang 40x50 cm
4. Keramik Lantai Toilet 30x30 cm
5. Keramik Dinding Toilet 30x60 cm & 1. Tiang Pancang Segitiga 28x28x28 cm
2. Dinding Batas Belakang Pondasi Lajur Batu Kali

Harga: Rp 880.000.000
Luas Bangunan: 74m 2
Luas Lahan: 84m 2
Kamar Tidur: 3
Kamar Mandi: 2
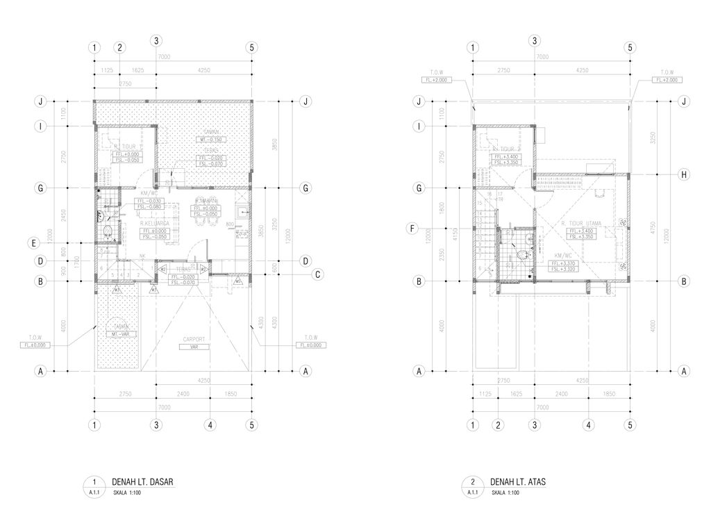
a. Atap
1. Genteng Beton
2. Ranga Kuda-Kuda Baja Ringan
3. Lapis Aluminium foil untuk peredam panas
b. Dinding
1. Dinding Bata Merah
2. Finish Plaster, Acian dan Cat
3. Dinding samping double
c. Lantai & Pondasi
1. Plat Lantai Beton
2. Keramik Lantai Utama 60x60 cm
3. Keramik Teras Depan & Belakang 40x50 cm
4. Keramik Lantai Toilet 30x30 cm
5. Keramik Dinding Toilet 30x60 cm & 1. Tiang Pancang Segitiga 28x28x28 cm
2. Dinding Batas Belakang Pondasi Lajur Batu Kali

Harga: Rp 963.000.000
Luas Bangunan: 74m 2
Luas Lahan: 108m 2
Kamar Tidur: 3
Kamar Mandi: 2
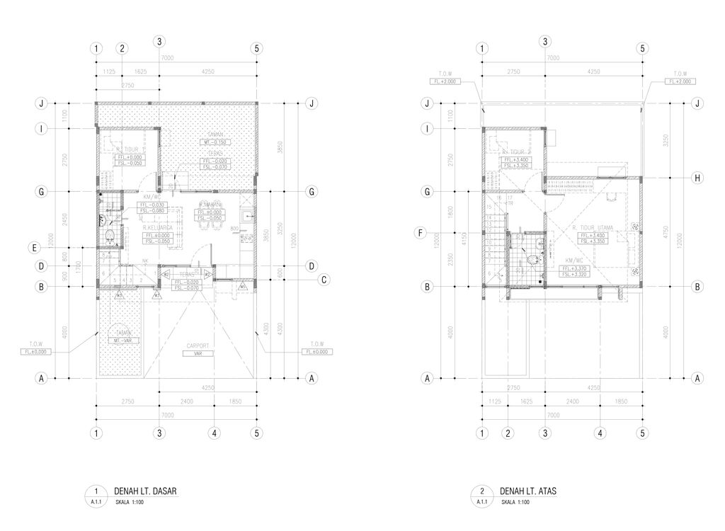
a. Atap
1. Genteng Beton
2. Ranga Kuda-Kuda Baja Ringan
3. Lapis Aluminium foil untuk peredam panas
b. Dinding
1. Dinding Bata Merah
2. Finish Plaster, Acian dan Cat
3. Dinding samping double
c. Lantai & Pondasi
1. Plat Lantai Beton
2. Keramik Lantai Utama 60x60 cm
3. Keramik Teras Depan & Belakang 40x50 cm
4. Keramik Lantai Toilet 30x30 cm
5. Keramik Dinding Toilet 30x60 cm & 1. Tiang Pancang Segitiga 28x28x28 cm
2. Dinding Batas Belakang Pondasi Lajur Batu Kali

Harga: Rp 920.000.000
Luas Bangunan: 74m 2
Luas Lahan: 84m 2
Kamar Tidur: 3
Kamar Mandi: 2
a. Atap
1. Genteng Beton
2. Ranga Kuda-Kuda Baja Ringan
3. Lapis Aluminium foil untuk peredam panas
b. Dinding
1. Dinding Bata Merah
2. Finish Plaster, Acian dan Cat
3. Dinding samping double
c. Lantai & Pondasi
1. Plat Lantai Beton
2. Keramik Lantai Utama 60x60 cm
3. Keramik Teras Depan & Belakang 40x50 cm
4. Keramik Lantai Toilet 30x30 cm
5. Keramik Dinding Toilet 30x60 cm & 1. Tiang Pancang Segitiga 28x28x28 cm
2. Dinding Batas Belakang Pondasi Lajur Batu Kali

Harga: Rp 799.000.000
Luas Bangunan: 68m 2
Luas Lahan: 72m 2
Kamar Tidur: 3
Kamar Mandi: 2
a. Atap
1. Genteng Beton
2. Ranga Kuda-Kuda Baja Ringan
3. Lapis Aluminium foil untuk peredam panas
b. Dinding
1. Dinding Bata Merah
2. Finish Plaster, Acian dan Cat
3. Dinding samping double
c. Lantai & Pondasi
1. Plat Lantai Beton
2. Keramik Lantai Utama 60x60 cm
3. Keramik Teras Depan & Belakang 40x50 cm
4. Keramik Lantai Toilet 30x30 cm
5. Keramik Dinding Toilet 30x60 cm & 1. Tiang Pancang Segitiga 28x28x28 cm
2. Dinding Batas Belakang Pondasi Lajur Batu Kali

Harga: Rp 698.000.000
Luas Bangunan: 52m 2
Luas Lahan: 90m 2
Kamar Tidur: 2
Kamar Mandi: 2
a. Atap
1. Genteng Beton
2. Ranga Kuda-Kuda Baja Ringan
3. Lapis Aluminium foil untuk peredam panas
b. Dinding
1. Dinding Bata Merah
2. Finish Plaster, Acian dan Cat
3. Dinding samping double
c. Lantai & Pondasi
1. Plat Lantai Beton
2. Keramik Lantai Utama 60x60 cm
3. Keramik Teras Depan & Belakang 40x50 cm
4. Keramik Lantai Toilet 30x30 cm
5. Keramik Dinding Toilet 30x60 cm & 1. Tiang Pancang Segitiga 28x28x28 cm
2. Dinding Batas Belakang Pondasi Lajur Batu Kali

Harga: Rp 796.000.000
Luas Bangunan: 68m 2
Luas Lahan: 72m 2
Kamar Tidur: 3
Kamar Mandi: 2
a. Atap
1. Genteng Beton
2. Ranga Kuda-Kuda Baja Ringan
3. Lapis Aluminium foil untuk peredam panas
b. Dinding
1. Dinding Bata Merah
2. Finish Plaster, Acian dan Cat
3. Dinding samping double
c. Lantai & Pondasi
1. Plat Lantai Beton
2. Keramik Lantai Utama 60x60 cm
3. Keramik Teras Depan & Belakang 40x50 cm
4. Keramik Lantai Toilet 30x30 cm
5. Keramik Dinding Toilet 30x60 cm
& 1. Tiang Pancang Segitiga 28x28x28 cm
2. Dinding Batas Belakang Pondasi Lajur Batu Kali

Harga: Rp 889.000.000
Luas Bangunan: 74m 2
Luas Lahan: 120m 2
Kamar Tidur: 3
Kamar Mandi: 2
a. Atap
1. Genteng Beton
2. Ranga Kuda-Kuda Baja Ringan
3. Lapis Aluminium foil untuk peredam panas
b. Dinding
1. Dinding Bata Merah
2. Finish Plaster, Acian dan Cat
3. Dinding samping double
c. Lantai & Pondasi
1. Plat Lantai Beton
2. Keramik Lantai Utama 60x60 cm
3. Keramik Teras Depan & Belakang 40x50 cm
4. Keramik Lantai Toilet 30x30 cm
5. Keramik Dinding Toilet 30x60 cm & 1. Tiang Pancang Segitiga 28x28x28 cm
2. Dinding Batas Belakang Pondasi Lajur Batu Kali

Harga: Rp 850.000.000
Luas Bangunan: 74m 2
Luas Lahan: 108m 2
Kamar Tidur: 3
Kamar Mandi: 2
a. Atap
1. Genteng Beton
2. Ranga Kuda-Kuda Baja Ringan
3. Lapis Aluminium foil untuk peredam panas
b. Dinding
1. Dinding Bata Merah
2. Finish Plaster, Acian dan Cat
3. Dinding samping double
c. Lantai & Pondasi
1. Plat Lantai Beton
2. Keramik Lantai Utama 60x60 cm
3. Keramik Teras Depan & Belakang 40x50 cm
4. Keramik Lantai Toilet 30x30 cm
5. Keramik Dinding Toilet 30x60 cm & 1. Tiang Pancang Segitiga 28x28x28 cm
2. Dinding Batas Belakang Pondasi Lajur Batu Kali

Harga: Rp 870.000.000
Luas Bangunan: 68m 2
Luas Lahan: 108m 2
Kamar Tidur: 3
Kamar Mandi: 2
a. Atap
1. Genteng Beton
2. Ranga Kuda-Kuda Baja Ringan
3. Lapis Aluminium foil untuk peredam panas
b. Dinding
1. Dinding Bata Merah
2. Finish Plaster, Acian dan Cat
3. Dinding samping double
c. Lantai & Pondasi
1. Plat Lantai Beton
2. Keramik Lantai Utama 60x60 cm
3. Keramik Teras Depan & Belakang 40x50 cm
4. Keramik Lantai Toilet 30x30 cm
5. Keramik Dinding Toilet 30x60 cm & 1. Tiang Pancang Segitiga 28x28x28 cm
2. Dinding Batas Belakang Pondasi Lajur Batu Kali

Harga: Rp 970.000.000
Luas Bangunan: 74m 2
Luas Lahan: 114m 2
Kamar Tidur: 3
Kamar Mandi: 2
a. Atap
1. Genteng Beton
2. Ranga Kuda-Kuda Baja Ringan
3. Lapis Aluminium foil untuk peredam panas
b. Dinding
1. Dinding Bata Merah
2. Finish Plaster, Acian dan Cat
3. Dinding samping double
c. Lantai & Pondasi
1. Plat Lantai Beton
2. Keramik Lantai Utama 60x60 cm
3. Keramik Teras Depan & Belakang 40x50 cm
4. Keramik Lantai Toilet 30x30 cm
5. Keramik Dinding Toilet 30x60 cm & 1. Tiang Pancang Segitiga 28x28x28 cm
2. Dinding Batas Belakang Pondasi Lajur Batu Kali

Harga: Rp 933.000.000
Luas Bangunan: 68m 2
Luas Lahan: 108m 2
Kamar Tidur: 3
Kamar Mandi: 2
a. Atap
Spesifikasi Atap:
1. Genteng Beton
2. Ranga Kuda-Kuda Baja Ringan
3. Lapis Aluminium foil untuk peredam panas
b. Dinding
Spesifikasi Dinding:
1. Dinding Bata Merah
2. Finish Plaster, Acian dan Cat
3. Dinding samping double
c. Lantai & Pondasi
Spesifikasi Lantai:
1. Plat Lantai Beton
2. Keramik Lantai Utama 60x60 cm
3. Keramik Teras Depan & Belakang 40x50 cm
4. Keramik Lantai Toilet 30x30 cm
5. Keramik Dinding Toilet 30x60 cm &
Spesifikasi Pondasi:
1. Tiang Pancang Segitiga 28x28x28 cm
2. Dinding Batas Belakang Pondasi Lajur Batu Kali

Harga: Rp 850.000.000
Luas Bangunan: 68m 2
Luas Lahan: 72m 2
Kamar Tidur: 3
Kamar Mandi: 2
a. Atap
Spesifikasi Atap:
1. Genteng Beton
2. Ranga Kuda-Kuda Baja Ringan
3. Lapis Aluminium foil untuk peredam panas
b. Dinding
Spesifikasi Dinding:
1. Dinding Bata Merah
2. Finish Plaster, Acian dan Cat
3. Dinding samping double
c. Lantai & Pondasi
Spesifikasi Lantai:
1. Plat Lantai Beton
2. Keramik Lantai Utama 60x60 cm
3. Keramik Teras Depan & Belakang 40x50 cm
4. Keramik Lantai Toilet 30x30 cm
5. Keramik Dinding Toilet 30x60 cm & Spesifikasi Pondasi:
1. Tiang Pancang Segitiga 28x28x28 cm
2. Dinding Batas Belakang Pondasi Lajur Batu Kali

Harga: Rp 720.000.000
Luas Bangunan: 52m 2
Luas Lahan: 90m 2
Kamar Tidur: 2
Kamar Mandi: 2
a. Atap
Spesifikasi Atap:
1. Genteng Beton
2. Ranga Kuda-Kuda Baja Ringan
3. Lapis Aluminium foil untuk peredam panas
b. Dinding
Spesifikasi Dinding:
1. Dinding Bata Merah
2. Finish Plaster, Acian dan Cat
3. Dinding samping double
c. Lantai & Pondasi
Spesifikasi Lantai:
1. Plat Lantai Beton
2. Keramik Lantai Utama 60x60 cm
3. Keramik Teras Depan & Belakang 40x50 cm
4. Keramik Lantai Toilet 30x30 cm
5. Keramik Dinding Toilet 30x60 cm
&
Spesifikasi Pondasi:
1. Tiang Pancang Segitiga 28x28x28 cm
2. Dinding Batas Belakang Pondasi Lajur Batu Kali

Harga: Rp 688.000.000
Luas Bangunan: 52m 2
Luas Lahan: 60m 2
Kamar Tidur: 2
Kamar Mandi: 2
a. Atap
Spesifikasi Atap:
1. Genteng Beton
2. Ranga Kuda-Kuda Baja Ringan
3. Lapis Aluminium foil untuk peredam panas
b. Dinding
Spesifikasi Dinding:
1. Dinding Bata Merah
2. Finish Plaster, Acian dan Cat
3. Dinding samping double
c. Lantai & Pondasi
Spesifikasi Lantai:
1. Plat Lantai Beton
2. Keramik Lantai Utama 60x60 cm
3. Keramik Teras Depan & Belakang 40x50 cm
4. Keramik Lantai Toilet 30x30 cm
5. Keramik Dinding Toilet 30x60 cm & Spesifikasi Pondasi:
1. Tiang Pancang Segitiga 28x28x28 cm
2. Dinding Batas Belakang Pondasi Lajur Batu Kali

Harga: Rp 998.000.000
Luas Bangunan: 74m 2
Luas Lahan: 108m 2
Kamar Tidur: 3
Kamar Mandi: 2
a. Atap
Spesifikasi Atap:
1. Genteng Beton
2. Ranga Kuda-Kuda Baja Ringan
3. Lapis Aluminium foil untuk peredam panas
b. Dinding
Spesifikasi Dinding:
1. Dinding Bata Merah
2. Finish Plaster, Acian dan Cat
3. Dinding samping double
c. Lantai & Pondasi
Spesifikasi Lantai:
1. Plat Lantai Beton
2. Keramik Lantai Utama 60x60 cm
3. Keramik Teras Depan & Belakang 40x50 cm
4. Keramik Lantai Toilet 30x30 cm
5. Keramik Dinding Toilet 30x60 cm & Spesifikasi Pondasi:
1. Tiang Pancang Segitiga 28x28x28 cm
2. Dinding Batas Belakang Pondasi Lajur Batu Kali

Harga: Rp 956.000.000
Luas Bangunan: 74m 2
Luas Lahan: 84m 2
Kamar Tidur: 3
Kamar Mandi: 2
a. Atap
Spesifikasi Atap:
1. Genteng Beton
2. Ranga Kuda-Kuda Baja Ringan
3. Lapis Aluminium foil untuk peredam panas
b. Dinding
Spesifikasi Dinding:
1. Dinding Bata Merah
2. Finish Plaster, Acian dan Cat
3. Dinding samping double
c. Lantai & Pondasi
Spesifikasi Lantai:
1. Plat Lantai Beton
2. Keramik Lantai Utama 60x60 cm
3. Keramik Teras Depan & Belakang 40x50 cm
4. Keramik Lantai Toilet 30x30 cm
5. Keramik Dinding Toilet 30x60 cm &
Spesifikasi Pondasi:
1. Tiang Pancang Segitiga 28x28x28 cm
2. Dinding Batas Belakang Pondasi Lajur Batu Kali

Harga: Rp 1.200.000.000
Luas Bangunan: 74m 2
Luas Lahan: 133m 2
Kamar Tidur: 3
Kamar Mandi: 2
a. Atap
Spesifikasi Atap:
1. Genteng Beton
2. Ranga Kuda-Kuda Baja Ringan
3. Lapis Aluminium foil untuk peredam panas
b. Dinding
Spesifikasi Dinding:
1. Dinding Bata Merah
2. Finish Plaster, Acian dan Cat
3. Dinding samping double
c. Lantai & Pondasi
Spesifikasi Lantai:
1. Plat Lantai Beton
2. Keramik Lantai Utama 60x60 cm
3. Keramik Teras Depan & Belakang 40x50 cm
4. Keramik Lantai Toilet 30x30 cm
5. Keramik Dinding Toilet 30x60 cm &
Spesifikasi Pondasi:
1. Tiang Pancang Segitiga 28x28x28 cm
2. Dinding Batas Belakang Pondasi Lajur Batu Kali

Harga: Rp 1.200.000.000
Luas Bangunan: 74m 2
Luas Lahan: 140m 2
Kamar Tidur: 3
Kamar Mandi: 2
a. Atap
Spesifikasi Atap:
1. Genteng Beton
2. Ranga Kuda-Kuda Baja Ringan
3. Lapis Aluminium foil untuk peredam panas
b. Dinding
Spesifikasi Dinding:
1. Dinding Bata Merah
2. Finish Plaster, Acian dan Cat
3. Dinding samping double
c. Lantai & Pondasi
Spesifikasi Lantai:
1. Plat Lantai Beton
2. Keramik Lantai Utama 60x60 cm
3. Keramik Teras Depan & Belakang 40x50 cm
4. Keramik Lantai Toilet 30x30 cm
5. Keramik Dinding Toilet 30x60 cm & Spesifikasi Pondasi:
1. Tiang Pancang Segitiga 28x28x28 cm
2. Dinding Batas Belakang Pondasi Lajur Batu Kali

Harga: Rp 1.300.000.000
Luas Bangunan: 74m 2
Luas Lahan: 162m 2
Kamar Tidur: 3
Kamar Mandi: 2
a. Atap
Spesifikasi Atap:
1. Genteng Beton
2. Ranga Kuda-Kuda Baja Ringan
3. Lapis Aluminium foil untuk peredam panas
b. Dinding
Spesifikasi Dinding:
1. Dinding Bata Merah
2. Finish Plaster, Acian dan Cat
3. Dinding samping double
c. Lantai & Pondasi
Spesifikasi Lantai:
1. Plat Lantai Beton
2. Keramik Lantai Utama 60x60 cm
3. Keramik Teras Depan & Belakang 40x50 cm
4. Keramik Lantai Toilet 30x30 cm
5. Keramik Dinding Toilet 30x60 cm & Spesifikasi Pondasi:
1. Tiang Pancang Segitiga 28x28x28 cm
2. Dinding Batas Belakang Pondasi Lajur Batu Kali

Harga: Rp 1.350.000.000
Luas Bangunan: 74m 2
Luas Lahan: 189m 2
Kamar Tidur: 3
Kamar Mandi: 2
a. Atap
Spesifikasi Atap:
1. Genteng Beton
2. Ranga Kuda-Kuda Baja Ringan
3. Lapis Aluminium foil untuk peredam panas
b. Dinding
Spesifikasi Dinding:
1. Dinding Bata Merah
2. Finish Plaster, Acian dan Cat
3. Dinding samping double
c. Lantai & Pondasi
Spesifikasi Lantai:
1. Plat Lantai Beton
2. Keramik Lantai Utama 60x60 cm
3. Keramik Teras Depan & Belakang 40x50 cm
4. Keramik Lantai Toilet 30x30 cm
5. Keramik Dinding Toilet 30x60 cm &
Spesifikasi Pondasi:
1. Tiang Pancang Segitiga 28x28x28 cm
2. Dinding Batas Belakang Pondasi Lajur Batu Kali
JL. SYEKH MOH. NAWAWI AL BANTANI no. 16 BANTEN, KOTA SERANG, Cipocok Jaya, Banjarsari
Telp : 087798008800
Email : primepointserang@gmail.com
Website : -