ID Lokasi : SRY0120152025T007
KALIMANTAN BARAT, KAB KUBU RAYA, Sungai Raya, Mekar Baru
PT FOURKINGS PROPERTI DEVELOPMENT
PERKUMPULAN ASOSIASI PENGEMBANG PERUMAHAN DAN PERMUKIMAN SELURUH INDONESIA
(APERSI)
Subsidi : 112 Unit
Terjual Subsidi : 4 Unit
Komersil : 0 Unit
Terjual Komersil : 0 Unit
Lihat Siteplan Digital




Harga: Rp 182.000.000
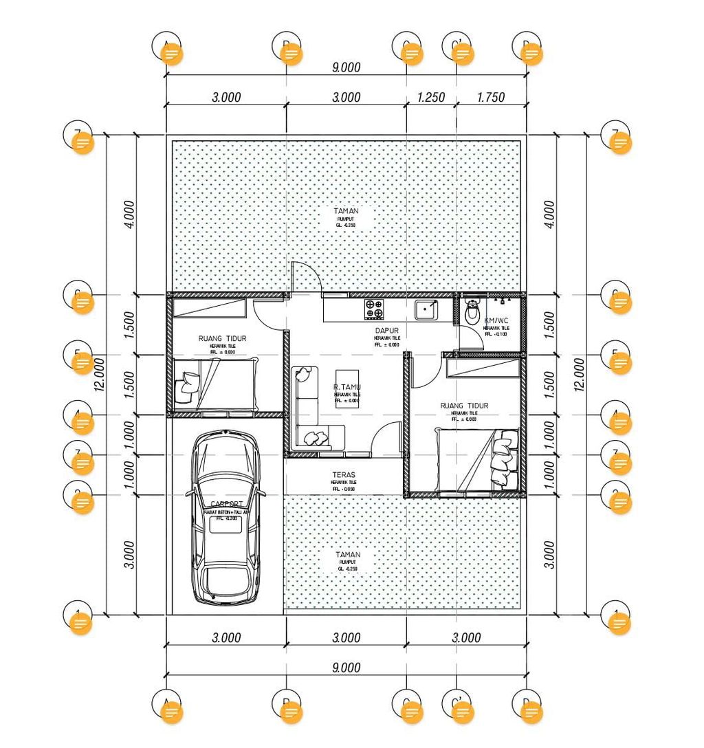
Luas Bangunan: 36m 2
Luas Lahan: 132m 2
Kamar Tidur: 2
Kamar Mandi: 1
a. Atap
rangka atap baja ringan seng metal plafon besi holo dan gypsum board
b. Dinding
batako plester
c. Lantai & Pondasi
keramik lantai 40x40 & tapak beton bertulang
cerucuk 4m full cakar ayam