SONATA DEWATA

ID Lokasi : SRY0920062022T001
KALIMANTAN BARAT, KAB KUBU RAYA, Sungai Kakap, Pal Sembilan
BERSAMA BANGUN NEGERI
REAL ESTATE INDONESIA (REI)


Status Rumah

Subsidi : 27 Unit

Terjual Subsidi : 18 Unit

Komersil : 0 Unit

Terjual Komersil : 0 Unit

Lihat Siteplan Digital

Peta Lokasi



Kantor Pemasaran

Komp. Sonata Dewata no. 1 KALIMANTAN BARAT, KAB KUBU RAYA, Sungai Kakap, Pal Sembilan

Telp : 082156449090

Email : bersamabangunnegri@gmail.com

Website :

Foto Lokasi


foto gerbang perumahan SONATA DEWATA
Foto Gerbang/Jalan Utama
foto contoh rumah perumahan SONATA DEWATA
Foto Rumah Contoh
foto posisi tengah perumahan SONATA DEWATA
Foto Posisi Tengah Lokasi

Tipe Rumah


1. Tipe 36 (subsidi)
foto tampak rumah tipe 36 perumahan SONATA DEWATA
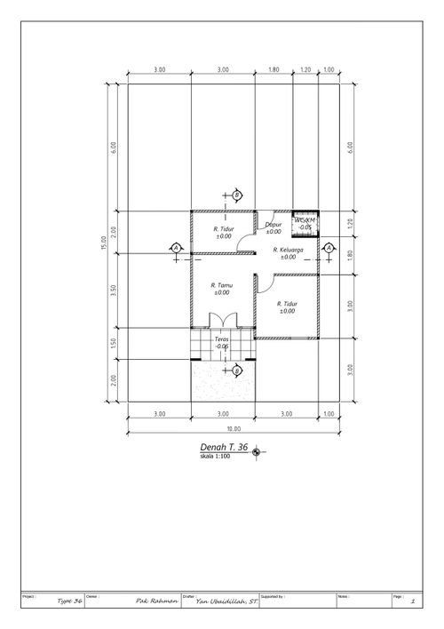
foto denah rumah tipe 36 perumahan SONATA DEWATA

Harga: Rp 164.000.000

Luas Bangunan: 36m 2

Luas Lahan: 120m 2

Kamar Tidur: 2

Kamar Mandi: 1

Spesifikasi Teknis

a. Atap
Atap Spandek Limas

b. Dinding
Dinding pLaster Batako

c. Lantai & Pondasi
Lantai Keramik 40x40 & Cor Tapak


Peta Lokasi


Kantor Pemasaran

Komp. Sonata Dewata no. 1 KALIMANTAN BARAT, KAB KUBU RAYA, Sungai Kakap, Pal Sembilan

Telp : 082156449090

Email : bersamabangunnegri@gmail.com

Website :