ID Lokasi : SRY0920062026T004
KALIMANTAN BARAT, KAB KUBU RAYA, Sungai Kakap, Pal Sembilan
PT ARTA JAYA CAKRAWALA
REAL ESTATE INDONESIA
(REI)
Subsidi : 79 Unit
Terjual Subsidi : 5 Unit
Komersil : 0 Unit
Terjual Komersil : 0 Unit
Lihat Siteplan DigitalJl. Ujung Pandang 1 no. - KALIMANTAN BARAT, KOTA PONTIANAK, Pontianak Kota, Sungaijawi
Telp : 085143050233
Email : artajayacakrawala@gmail.com
Website : -


Harga: Rp 182.000.000
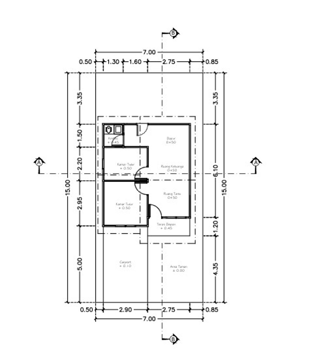
Luas Bangunan: 36m 2
Luas Lahan: 105m 2
Kamar Tidur: 2
Kamar Mandi: 1
a. Atap
Rangka Kayu Atap Seng Metal
b. Dinding
Dinding Bata Plaster Luar Dalam
c. Lantai & Pondasi
Lantai Keramik & Pondasi Cor 60 cm
Jl. Ujung Pandang 1 no. - KALIMANTAN BARAT, KOTA PONTIANAK, Pontianak Kota, Sungaijawi
Telp : 085143050233
Email : artajayacakrawala@gmail.com
Website : -