ID Lokasi : SRY0920092025T007
KALIMANTAN BARAT, KAB KUBU RAYA, Sungai Kakap, Pal Sembilan
PT BINTANG TIMUR LAND
REAL ESTATE INDONESIA
(REI)
Subsidi : 68 Unit
Terjual Subsidi : 16 Unit
Komersil : 0 Unit
Terjual Komersil : 0 Unit
Lihat Siteplan DigitalJalan Sukamulia Komp. Kurnia 2 no. 1A KALIMANTAN BARAT, KOTA PONTIANAK, Pontianak Kota, Sungaijawi
Telp : 085849166950
Email : bintangtimurland@gmail.com
Website : -





Harga: Rp 182.000.000
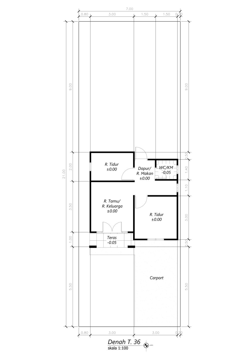
Luas Bangunan: 36m 2
Luas Lahan: 147m 2
Kamar Tidur: 2
Kamar Mandi: 1
a. Atap
Baja Ringan
b. Dinding
Bata Plester
c. Lantai & Pondasi
Keramik & Tapak
Jalan Sukamulia Komp. Kurnia 2 no. 1A KALIMANTAN BARAT, KOTA PONTIANAK, Pontianak Kota, Sungaijawi
Telp : 085849166950
Email : bintangtimurland@gmail.com
Website : -