ID Lokasi : STG0110042025T001
KALIMANTAN BARAT, KAB SINTANG, Sintang, Kapuas Kanan Hilir
PT DWI POETRA PERKASA
PERKUMPULAN ASOSIASI PENGEMBANG PERUMAHAN DAN PERMUKIMAN SELURUH INDONESIA
(APERSI)
Subsidi : 3 Unit
Terjual Subsidi : 31 Unit
Komersil : 0 Unit
Terjual Komersil : 0 Unit
Lihat Siteplan Digital




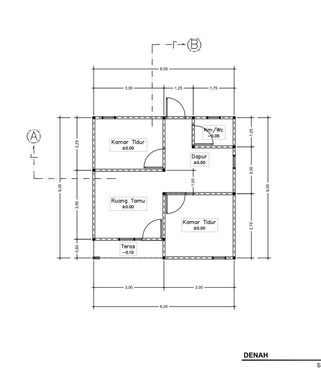
Harga: Rp 182
Luas Bangunan: 36m 2
Luas Lahan: 150m 2
Kamar Tidur: 2
Kamar Mandi: 1
a. Atap
baja ringan
b. Dinding
batako
c. Lantai & Pondasi
keramik & cakar ayam


Harga: Rp 182.000.000
Luas Bangunan: 36m 2
Luas Lahan: 150m 2
Kamar Tidur: 2
Kamar Mandi: 1
a. Atap
Baja Ringan
b. Dinding
Semen Batako
c. Lantai & Pondasi
Keramik & Cakar Ayam