ID Lokasi : STG0110192026T001
KALIMANTAN BARAT, KAB SINTANG, Sintang, Sengkuang
PT MUTIARA BUMI PROPERTY
PERKUMPULAN ASOSIASI PENGEMBANG PERUMAHAN DAN PERMUKIMAN SELURUH INDONESIA
(APERSI)
Subsidi : 8 Unit
Terjual Subsidi : 0 Unit
Komersil : 0 Unit
Terjual Komersil : 0 Unit
Lihat Siteplan Digital




Harga: Rp 182.000.000
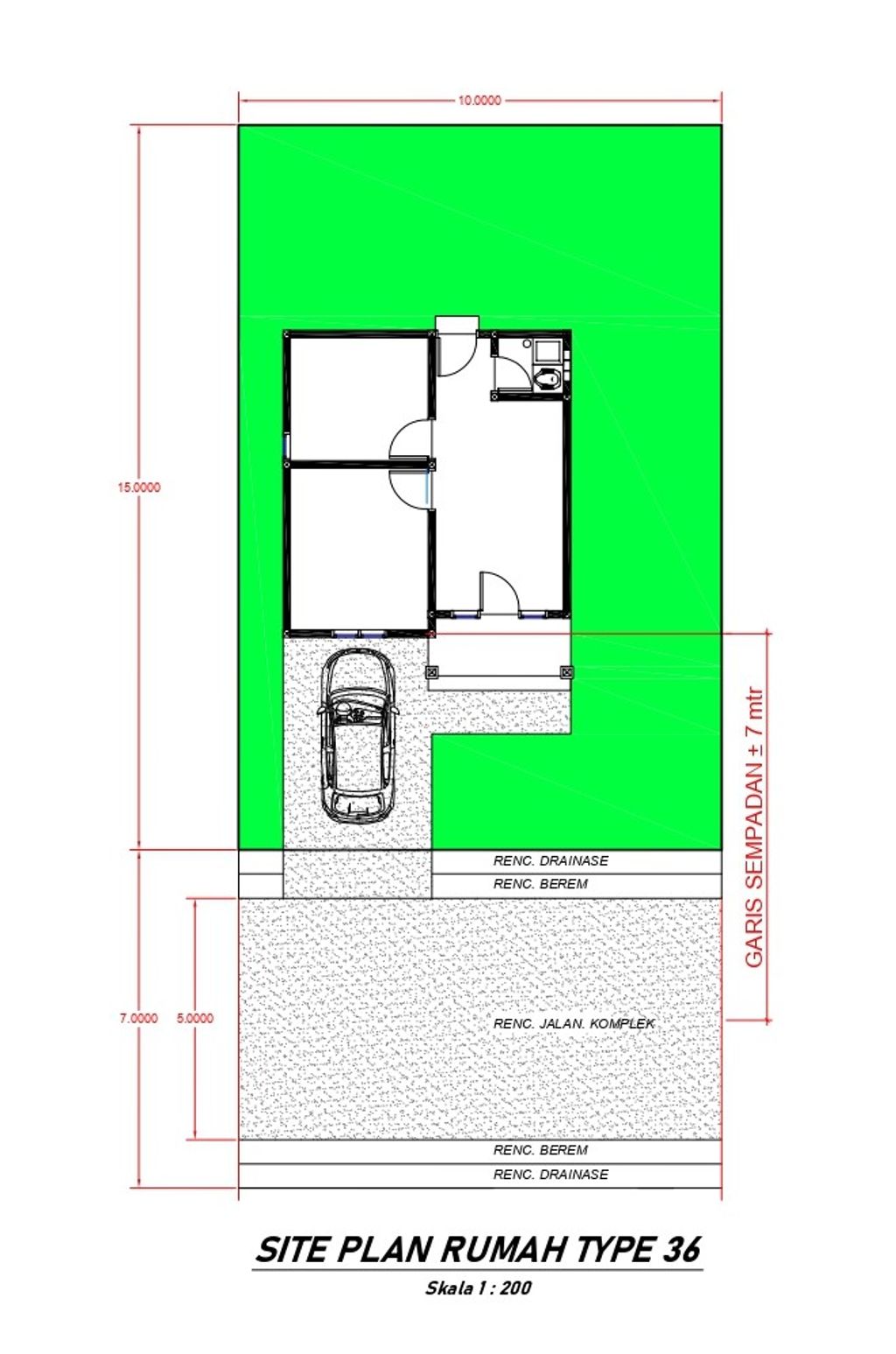
Luas Bangunan: 36m 2
Luas Lahan: 150m 2
Kamar Tidur: 2
Kamar Mandi: 1
a. Atap
Atap metal, Rangka baja ringan
b. Dinding
Batako plester halus
c. Lantai & Pondasi
keramik & Cor beton bertulang