ID Lokasi : SWW0720032021T001
GORONTALO, KAB BONE BOLANGO, Botupingge, Luwohu
PT. TRISYMET MARWAH MANDIRI
PROPERTY INDONESIA
(PIN)
Subsidi : 33 Unit
Terjual Subsidi : 14 Unit
Komersil : 0 Unit
Terjual Komersil : 13 Unit
Lihat Siteplan Digital




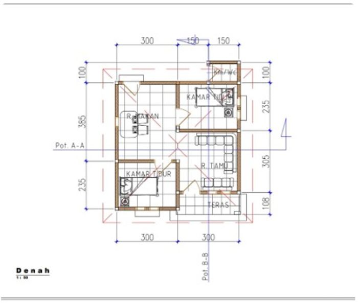
Harga: Rp 156.500.000
Luas Bangunan: 36m 2
Luas Lahan: 109m 2
Kamar Tidur: 2
Kamar Mandi: 1
a. Atap
SENG WARNA
b. Dinding
BATU BATA MERAH FINISHING CAT
c. Lantai & Pondasi
FULL KERAMIK & BATU BELAH GUNUNG


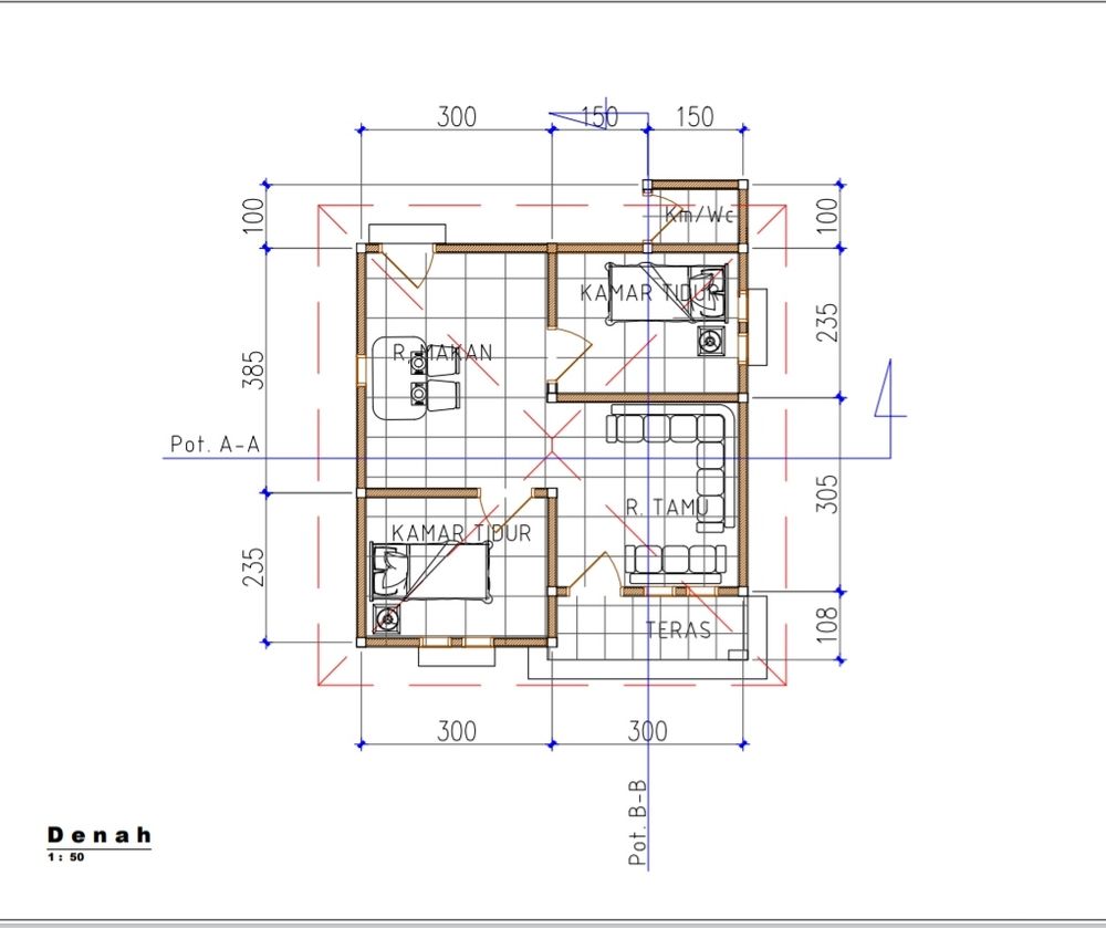
Harga: Rp 156.500.000
Luas Bangunan: 36m 2
Luas Lahan: 108m 2
Kamar Tidur: 2
Kamar Mandi: 1
a. Atap
seng warnah
b. Dinding
batu bata merah finishing cat
c. Lantai & Pondasi
full kramik & batu belah gunung