GATRI RESIDENCE 3

ID Lokasi : TBG0410332024T001
SUMATERA SELATAN, KAB EMPAT LAWANG, Tebing Tinggi, Jaya Loka
GRAHA ANUGRAH PUTRI
REAL ESTATE INDONESIA (REI)


Status Rumah

Subsidi : 113 Unit

Terjual Subsidi : 84 Unit

Komersil : 0 Unit

Terjual Komersil : 0 Unit

Lihat Siteplan Digital

Peta Lokasi



Kantor Pemasaran

TALANG JAWA NO.41, RT.008, RW.001 no. 1 SUMATERA SELATAN, KAB EMPAT LAWANG, Tebing Tinggi, Jaya Loka

Telp : 081279934145

Email : ptgrahaanugrahputri2021@gmail.com

Website : -

Foto Lokasi


foto gerbang perumahan GATRI RESIDENCE 3
Foto Gerbang/Jalan Utama
foto contoh rumah perumahan GATRI RESIDENCE 3
Foto Rumah Contoh
foto posisi tengah perumahan GATRI RESIDENCE 3
Foto Posisi Tengah Lokasi

Tipe Rumah


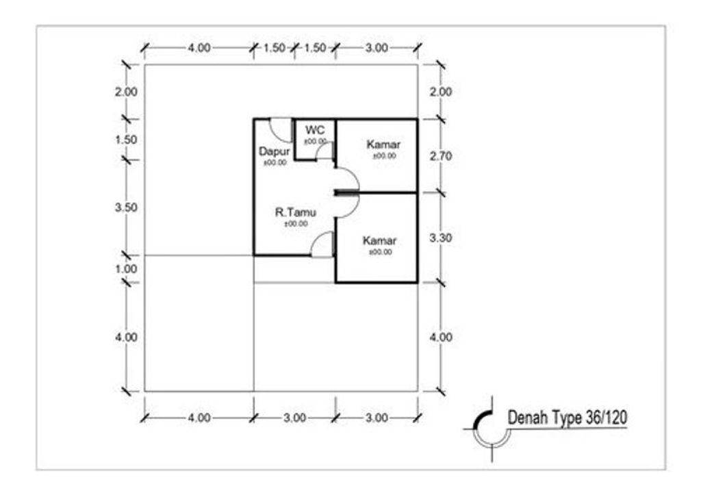
1. Tipe 36/120 (subsidi)
foto tampak rumah tipe 36/120 perumahan GATRI RESIDENCE 3
foto denah rumah tipe 36/120 perumahan GATRI RESIDENCE 3

Harga: Rp 166.000.000

Luas Bangunan: 36m 2

Luas Lahan: 120m 2

Kamar Tidur: 2

Kamar Mandi: 1

Spesifikasi Teknis

a. Atap
Seng spandek tanpa sambung

b. Dinding
Pas,bata merah,plester,acian cat luar dalam

c. Lantai & Pondasi
Keramik 40x40 & Pas,Batu kali,semen


Peta Lokasi


Kantor Pemasaran

TALANG JAWA NO.41, RT.008, RW.001 no. 1 SUMATERA SELATAN, KAB EMPAT LAWANG, Tebing Tinggi, Jaya Loka

Telp : 081279934145

Email : ptgrahaanugrahputri2021@gmail.com

Website : -