ID Lokasi : TBT0210072023T001
SUMATERA UTARA, KOTA TEBING TINGGI, Rambutan, Karya Jaya
MITRA AIRA LESTARI
REAL ESTATE INDONESIA
(REI)
Subsidi : 1 Unit
Terjual Subsidi : 63 Unit
Komersil : 0 Unit
Terjual Komersil : 0 Unit
Lihat Siteplan DigitalJL. JEND. SUDIRMAN no. 223 SUMATERA UTARA, KOTA TEBING TINGGI, Tebing Tinggi Kota, Badak Bejuang
Telp : 08116122018
Email : ptmitraairalestari@gmail.com
Website : -





Harga: Rp 162.000.000
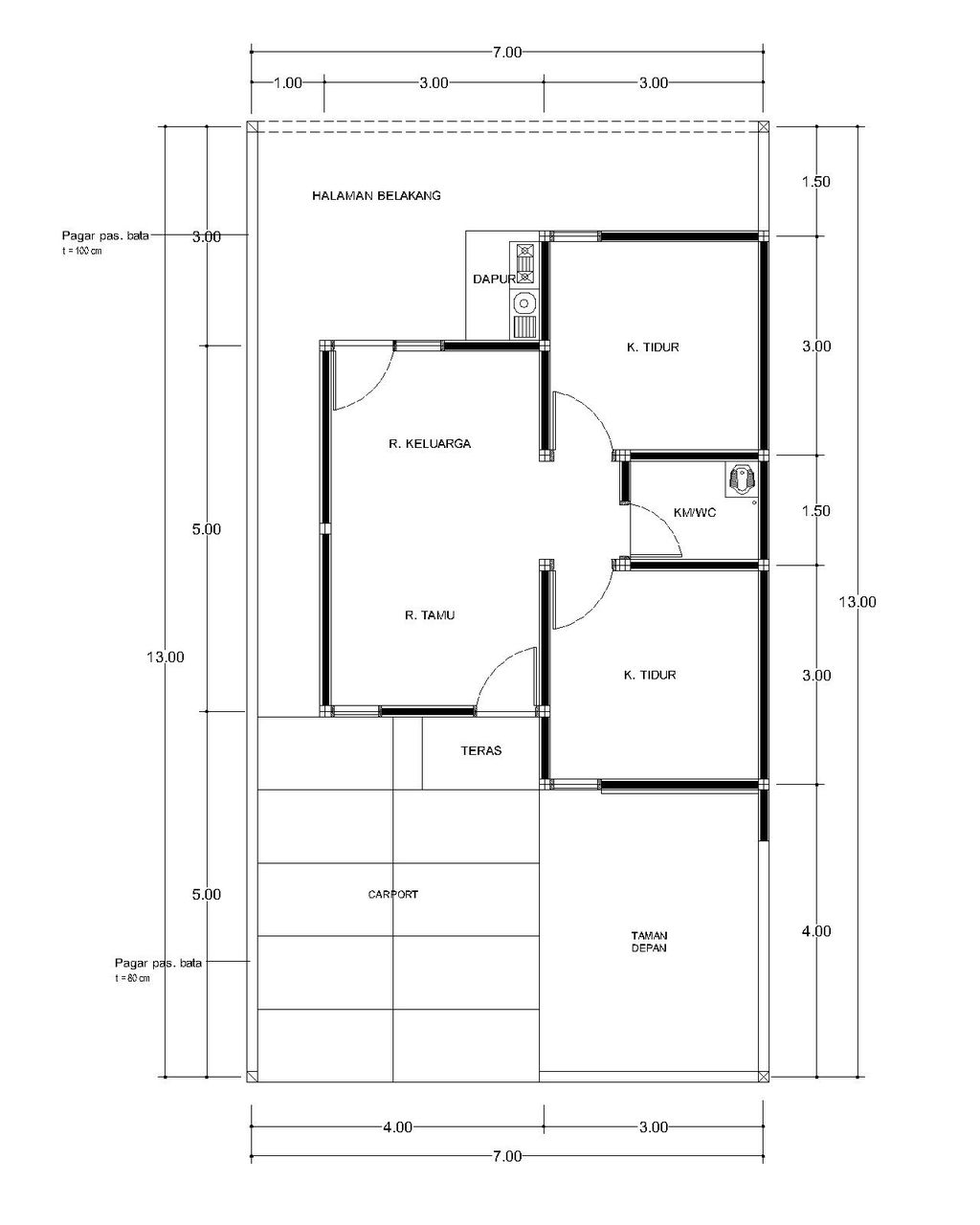
Luas Bangunan: 36m 2
Luas Lahan: 91m 2
Kamar Tidur: 2
Kamar Mandi: 1
a. Atap
BAJA RINGAN
b. Dinding
BATU BATA
c. Lantai & Pondasi
KERAMIK & COR BETON BERTULANG
JL. JEND. SUDIRMAN no. 223 SUMATERA UTARA, KOTA TEBING TINGGI, Tebing Tinggi Kota, Badak Bejuang
Telp : 08116122018
Email : ptmitraairalestari@gmail.com
Website : -