ID Lokasi : TDN0120132020T002
KEPULAUAN BANGKA BELITUNG, KAB BELITUNG, Tanjung Pandan, Aik Pelempang Jaya
PT RULLYTASARI
PERKUMPULAN ASOSIASI PENGEMBANG PERUMAHAN DAN PERMUKIMAN SELURUH INDONESIA
(APERSI)
Subsidi : 3 Unit
Terjual Subsidi : 12 Unit
Komersil : 0 Unit
Terjual Komersil : 0 Unit
Lihat Siteplan Digital




Harga: Rp 156.500.000
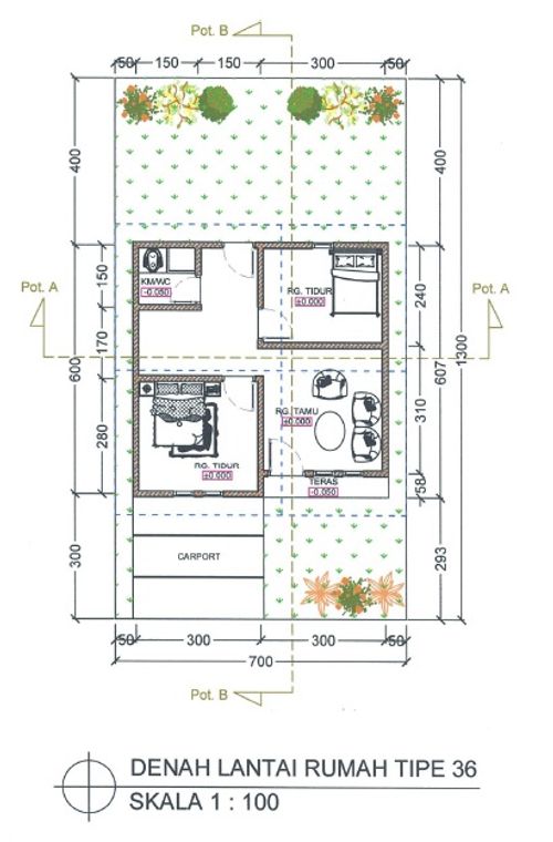
Luas Bangunan: 36m 2
Luas Lahan: 91m 2
Kamar Tidur: 2
Kamar Mandi: 1
a. Atap
Baja Ringan + Multiroof
b. Dinding
Batako + Plester + Aci/Plamir + Cat Interior & Eksterior
c. Lantai & Pondasi
Keramik 40 x 40 & Batu Gunung