ID Lokasi : TGR0420082024T001
BANTEN, KAB TANGERANG, Jambe, Mekarsari
PT UNGGUL BUDI LESTARI
REAL ESTATE INDONESIA
(REI)
Subsidi : 0 Unit
Terjual Subsidi : 0 Unit
Komersil : 1 Unit
Terjual Komersil : 158 Unit
Lihat Siteplan DigitalJl. Sarwani, Desa Mekarsari Kec. Jambe Kab. Tangerang, Banten no. - BANTEN, KAB TANGERANG, Jambe, Mekarsari
Telp : 021-37937139
Email : unggul.budilestari@yahoo.com
Website : -





Harga: Rp 456.487.801
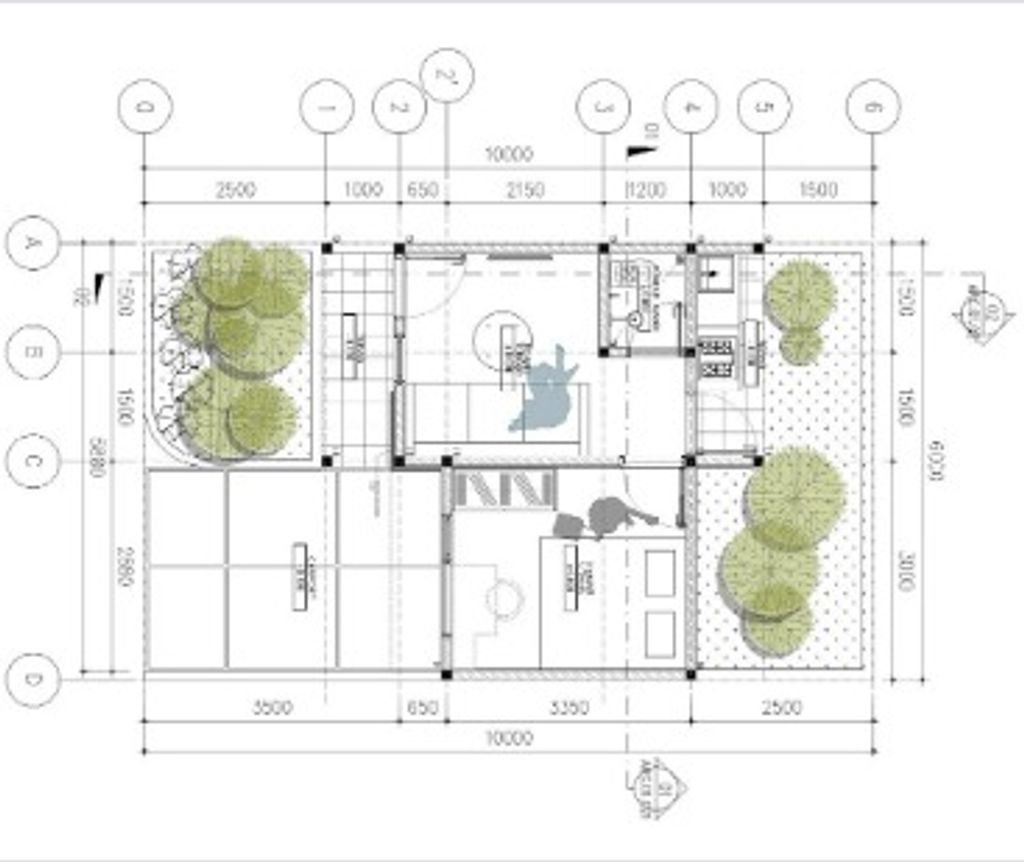
Luas Bangunan: 46m 2
Luas Lahan: 96m 2
Kamar Tidur: 3
Kamar Mandi: 1
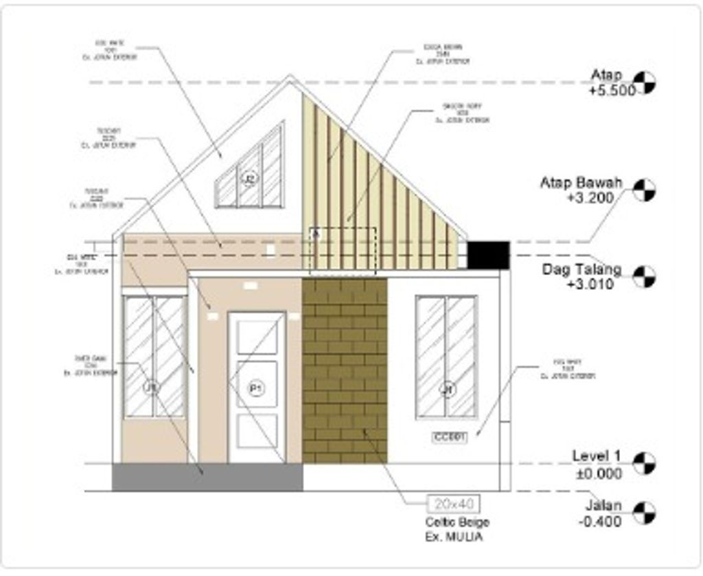
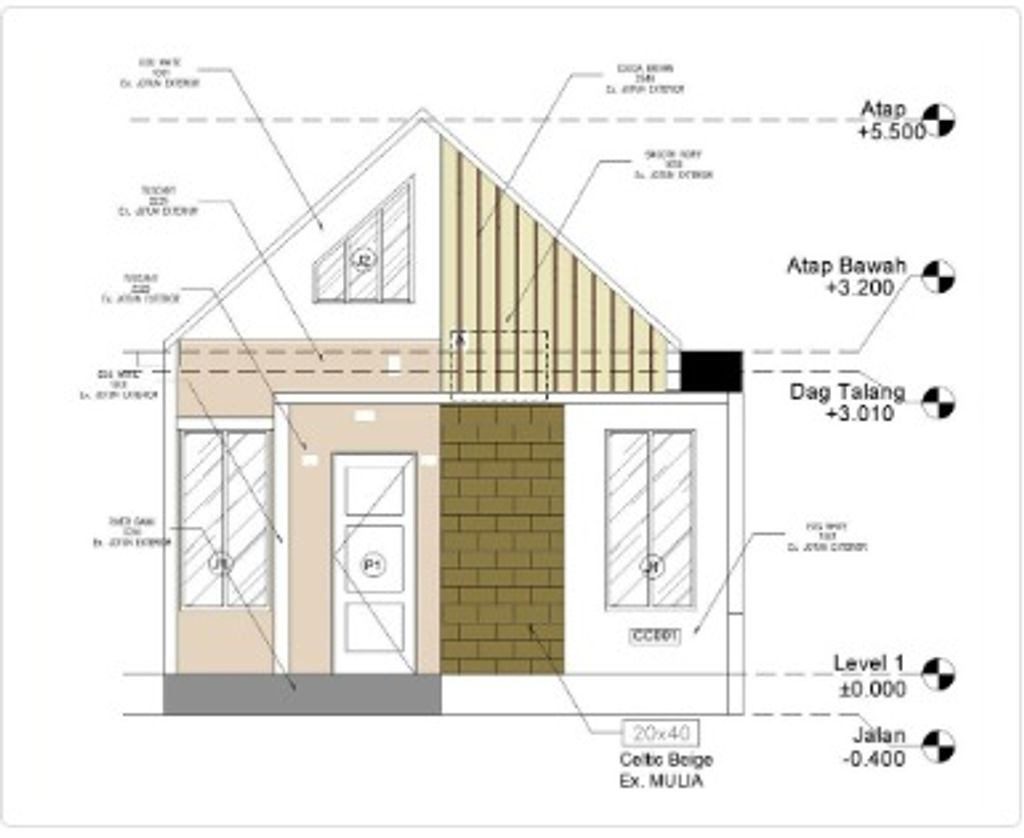
a. Atap
Metal Pasir ( All Type )
b. Dinding
Bata Ringan ( Double Wall )
c. Lantai & Pondasi
HT 60 X 60 & Batu, Sloof beton, Pondasi Menerus


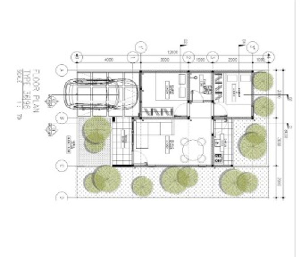
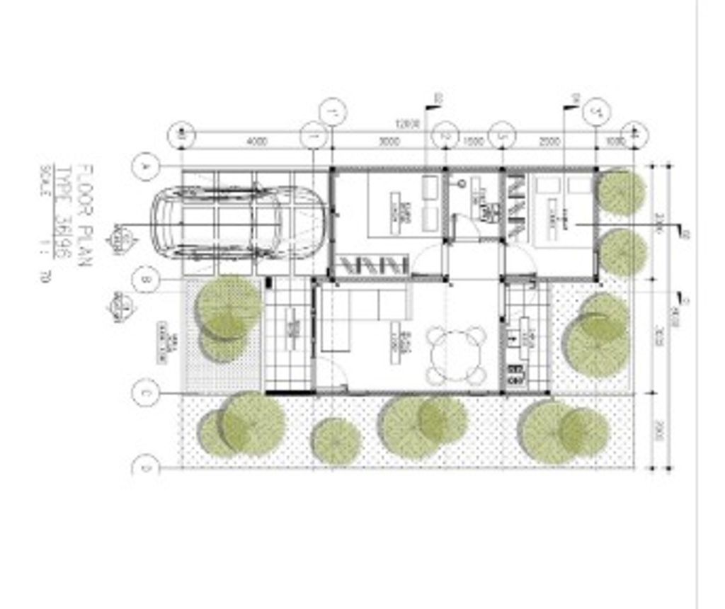
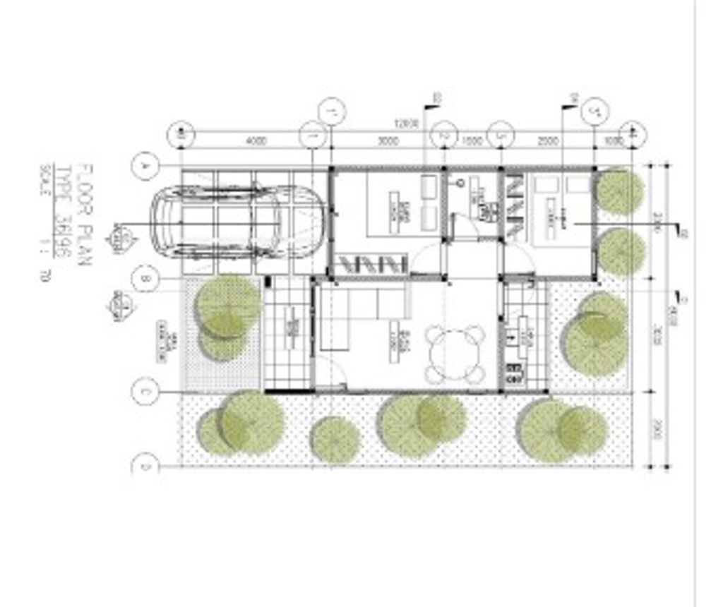
Harga: Rp 313.875.000
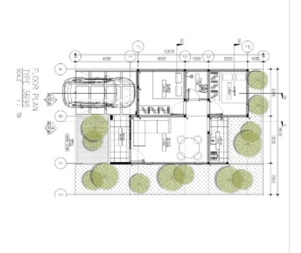
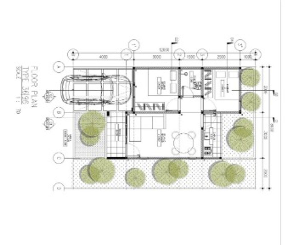
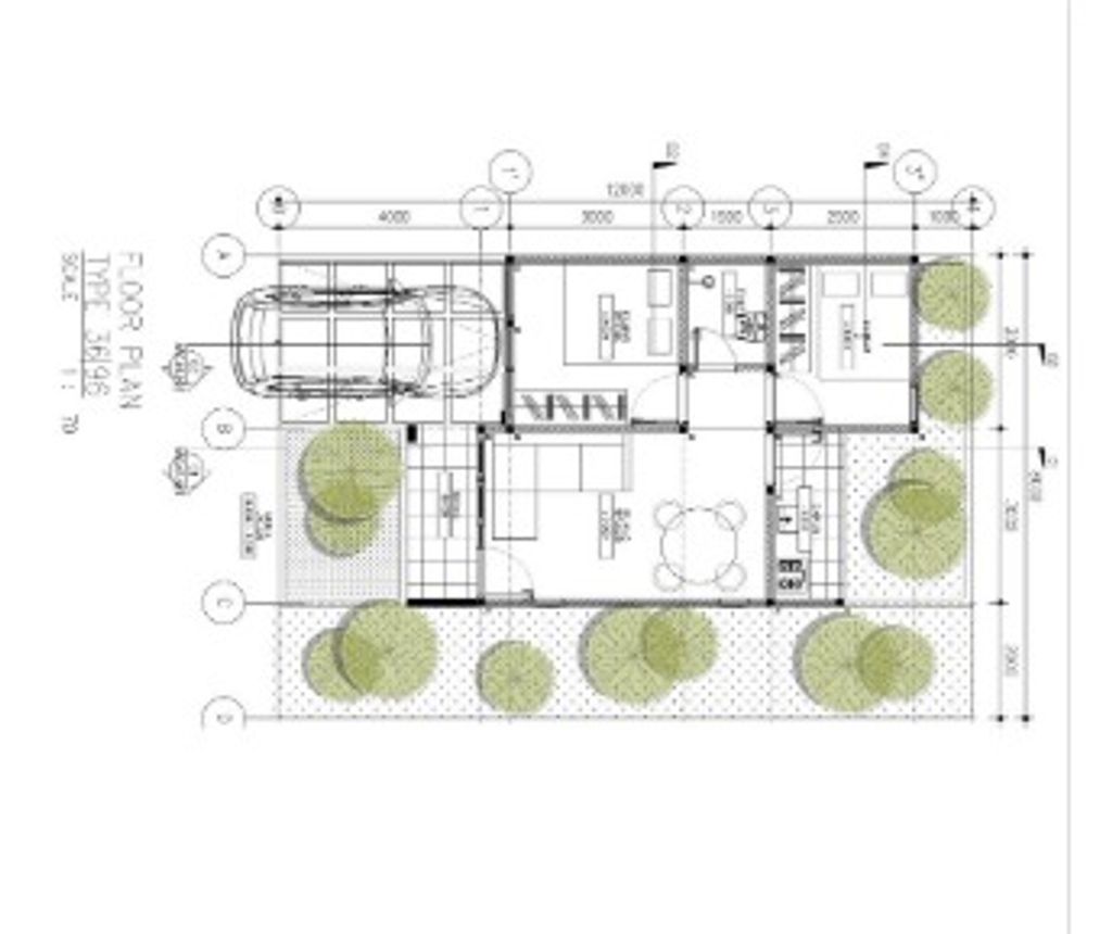
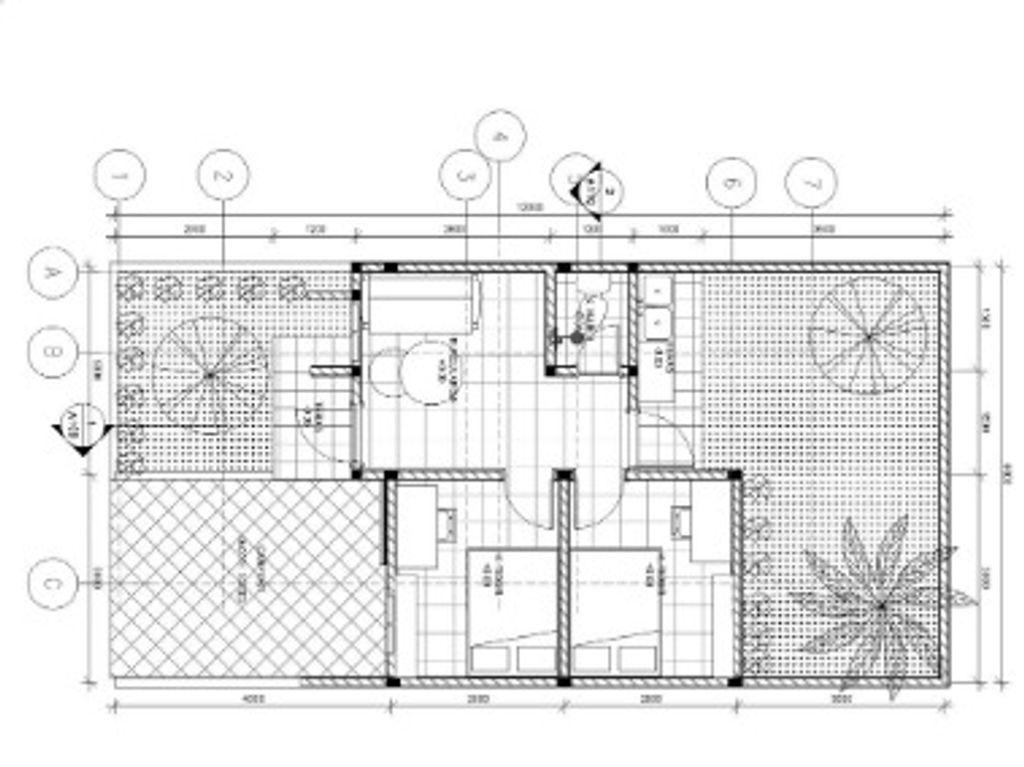
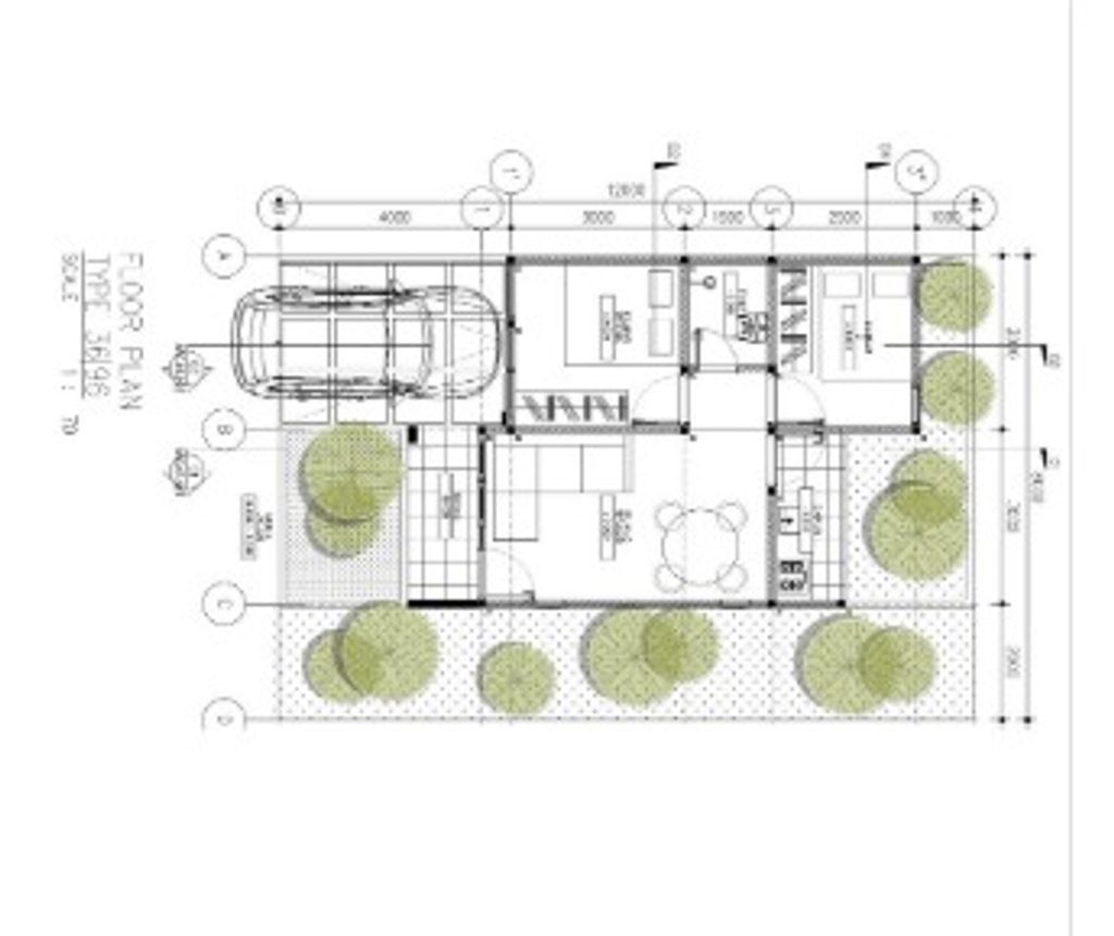
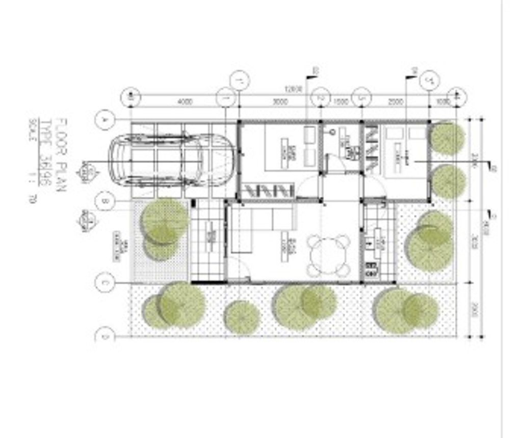
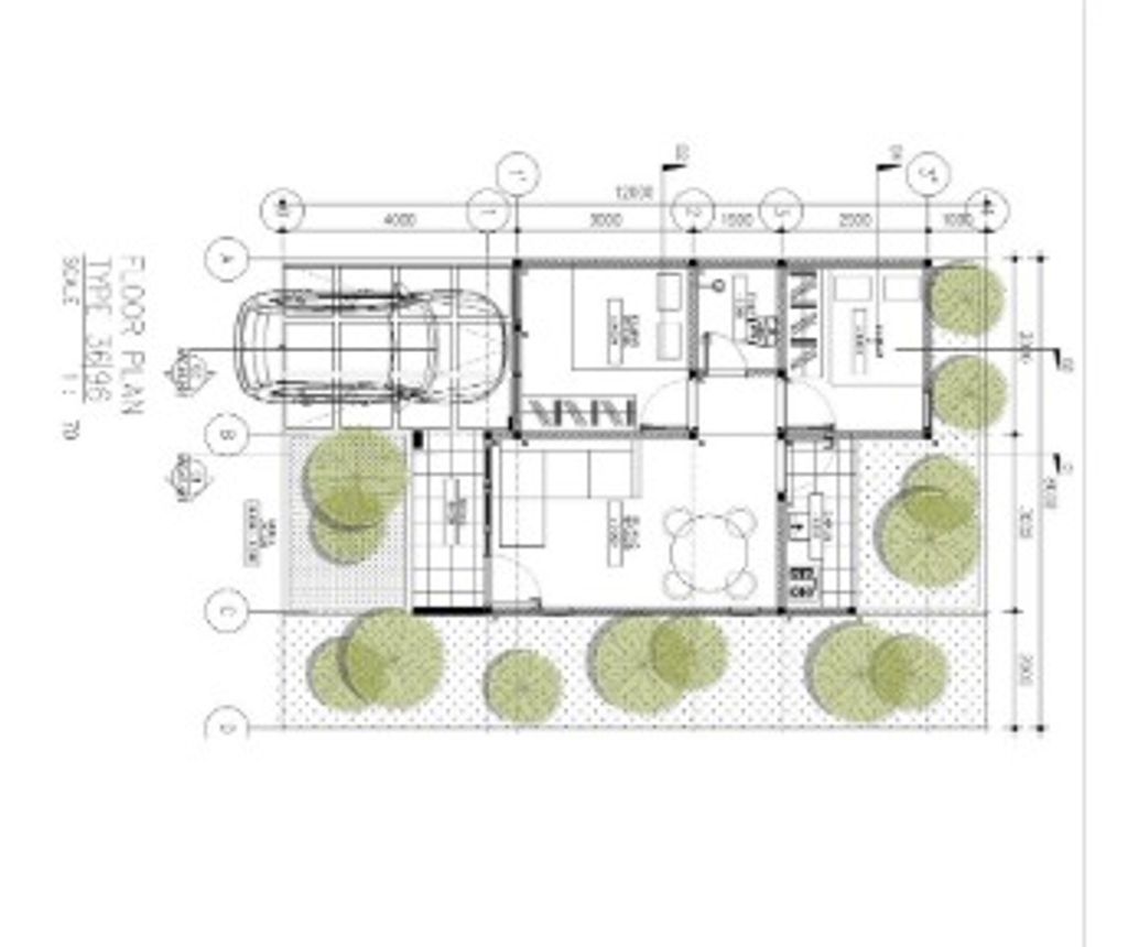
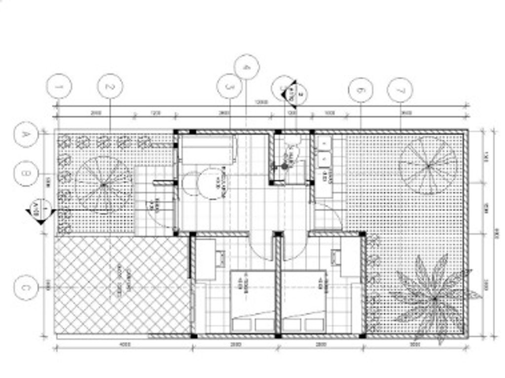
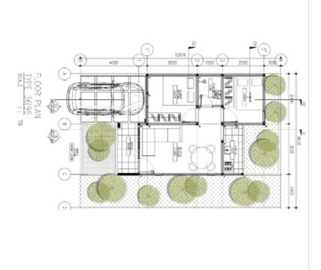
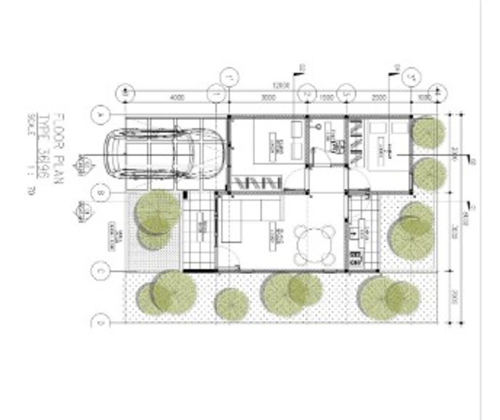
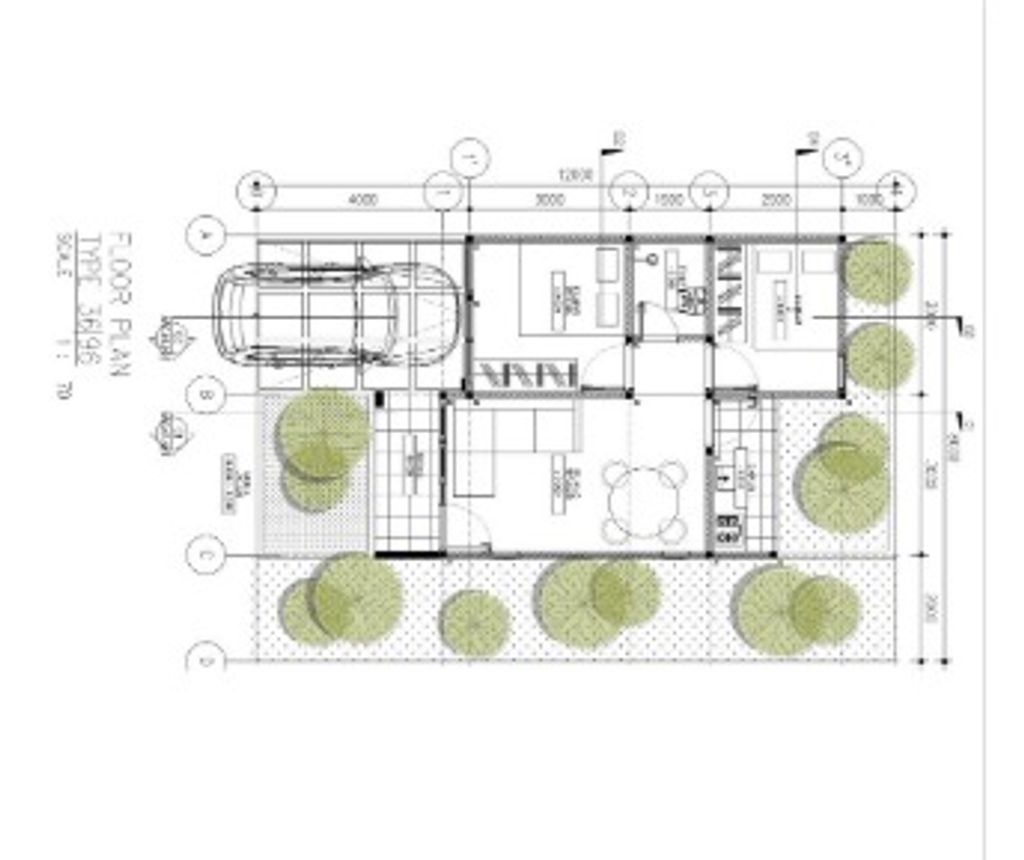
Luas Bangunan: 36m 2
Luas Lahan: 72m 2
Kamar Tidur: 2
Kamar Mandi: 1
a. Atap
Metal Pasir
b. Dinding
Bata Ringan ( Double Wall )
c. Lantai & Pondasi
40 X 40 & Batu, Sloof Beton, Pondasi Menerus


Harga: Rp 256.208.333
Luas Bangunan: 27m 2
Luas Lahan: 72m 2
Kamar Tidur: 2
Kamar Mandi: 1
a. Atap
Metal Pasir
b. Dinding
Bata Ringan ( Double Wall )
c. Lantai & Pondasi
40 X 40 & Batu, Sloof Beton, Pondasi Menerus


Harga: Rp 204.520.000
Luas Bangunan: 22m 2
Luas Lahan: 60m 2
Kamar Tidur: 1
Kamar Mandi: 1
a. Atap
Metal Pasir
b. Dinding
Bata Ringan ( Double Wall )
c. Lantai & Pondasi
40 X 40 & Batu, Sloof Beton, Pondasi Menerus


Harga: Rp 358.666.667
Luas Bangunan: 36m 2
Luas Lahan: 96m 2
Kamar Tidur: 2
Kamar Mandi: 1
a. Atap
Metal Pasir
b. Dinding
Bata Ringan ( Double Wall )
c. Lantai & Pondasi
60 X 60 & Batu, Slof Beton, Pondai Menerus


Harga: Rp 397.758.333
Luas Bangunan: 36m 2
Luas Lahan: 108m 2
Kamar Tidur: 2
Kamar Mandi: 1
a. Atap
Metal Pasir
b. Dinding
Bata Ringan (Double Wall)
c. Lantai & Pondasi
60x60 & Batu, Slof Beton, Pondasi Menerus


Harga: Rp 361.750.000
Luas Bangunan: 27m 2
Luas Lahan: 108m 2
Kamar Tidur: 2
Kamar Mandi: 1
a. Atap
Metal Pasir
b. Dinding
Bata Ringan
c. Lantai & Pondasi
60x60 & Batu, Slof Beton, Pondasi Menerus


Harga: Rp 267.575.000
Luas Bangunan: 27m 2
Luas Lahan: 72m 2
Kamar Tidur: 2
Kamar Mandi: 1
a. Atap
Metal Pasir
b. Dinding
Bata Ringan
c. Lantai & Pondasi
60x60 & Batu, Slof Beton, Pondasi Menerus


Harga: Rp 242.858.333
Luas Bangunan: 27m 2
Luas Lahan: 72m 2
Kamar Tidur: 2
Kamar Mandi: 1
a. Atap
Metal Pasir
b. Dinding
Bata Ringan
c. Lantai & Pondasi
60x60 & Batu, Slof Beton, Pondasi Menerus


Harga: Rp 222.400.000
Luas Bangunan: 22m 2
Luas Lahan: 72m 2
Kamar Tidur: 1
Kamar Mandi: 1
a. Atap
Metal Pasir
b. Dinding
Bata Ringan
c. Lantai & Pondasi
60x60 & Batu, Slof Beton, Pondasi Menerus


Harga: Rp 385.043.333
Luas Bangunan: 36m 2
Luas Lahan: 103m 2
Kamar Tidur: 2
Kamar Mandi: 1
a. Atap
Metal Pasir
b. Dinding
Bata Ringan (double wall)
c. Lantai & Pondasi
60x60 & Batu, Slof Beton, Pondasi Menerus


Harga: Rp 464.875.333
Luas Bangunan: 36m 2
Luas Lahan: 129m 2
Kamar Tidur: 2
Kamar Mandi: 1
a. Atap
Metal Pasir
b. Dinding
Bata Ringan (Double Wall)
c. Lantai & Pondasi
60 x 60 & Batu, Slof Beton, Pondasi Menerus


Harga: Rp 566.603.333
Luas Bangunan: 36m 2
Luas Lahan: 163m 2
Kamar Tidur: 2
Kamar Mandi: 1
a. Atap
Metal Pasir
b. Dinding
Bata Ringan (Double Wall)
c. Lantai & Pondasi
60x60 & Batu, Slof Beton, Pondasi Menerus


Harga: Rp 372.165.833
Luas Bangunan: 36m 2
Luas Lahan: 98m 2
Kamar Tidur: 2
Kamar Mandi: 1
a. Atap
Metal Pasir
b. Dinding
Bata Ringan (Double Wall)
c. Lantai & Pondasi
60x60 & Batu, Slof Beton, Pondasi Menerus


Harga: Rp 427.118.333
Luas Bangunan: 52m 2
Luas Lahan: 96m 2
Kamar Tidur: 2
Kamar Mandi: 1
a. Atap
Metal Pasir
b. Dinding
Bata Ringan (Double Wall)
c. Lantai & Pondasi
HT 60x60 & Batu, Slof Beton, Pondasi Menerus


Harga: Rp 366.173.333
Luas Bangunan: 36m 2
Luas Lahan: 96m 2
Kamar Tidur: 2
Kamar Mandi: 1
a. Atap
Metal Pasir
b. Dinding
Bata Ringan (Double Wall)
c. Lantai & Pondasi
HT 60x60 & Batu, Slof Beton, Pondasi Menerus


Harga: Rp 577.653.333
Luas Bangunan: 36m 2
Luas Lahan: 175m 2
Kamar Tidur: 2
Kamar Mandi: 1
a. Atap
Metal Pasir
b. Dinding
Bata Ringan (Double Wall)
c. Lantai & Pondasi
HT 60x60 & Batu, Slof Beton, Pondasi Menerus


Harga: Rp 561.205.833
Luas Bangunan: 36m 2
Luas Lahan: 161m 2
Kamar Tidur: 2
Kamar Mandi: 1
a. Atap
Metal Pasir
b. Dinding
Bata Ringan (Double Wall)
c. Lantai & Pondasi
HT 60x60 & Batu, Slof Beton, Pondasi Menerus


Harga: Rp 320.485.833
Luas Bangunan: 36m 2
Luas Lahan: 72m 2
Kamar Tidur: 2
Kamar Mandi: 1
a. Atap
Metal Pasir
b. Dinding
Bata Ringan (Double Wall)
c. Lantai & Pondasi
HT 60x60 & Batu, Slof Beton, Pondasi Menerus


Harga: Rp 428.180.833
Luas Bangunan: 36m 2
Luas Lahan: 98m 2
Kamar Tidur: 2
Kamar Mandi: 1
a. Atap
Metal Pasir
b. Dinding
Bata Ringan (Double Wall)
c. Lantai & Pondasi
HT 60x60 & Batu, Slof Beton, Pondasi Menerus


Harga: Rp 406.273.358
Luas Bangunan: 36m 2
Luas Lahan: 108m 2
Kamar Tidur: 2
Kamar Mandi: 1
a. Atap
Metal Pasir
b. Dinding
Bata Ringan (Double Wall)
c. Lantai & Pondasi
60x60 & Batu, Slof Beton, Pondasi Menerus


Harga: Rp 370.001.733
Luas Bangunan: 36m 2
Luas Lahan: 96m 2
Kamar Tidur: 2
Kamar Mandi: 1
a. Atap
Metal Pasir
b. Dinding
Bata Ringan (Double Wall)
c. Lantai & Pondasi
60x60 & Batu, Slof Beton, Pondasi Menerus


Harga: Rp 323.857.358
Luas Bangunan: 36m 2
Luas Lahan: 72m 2
Kamar Tidur: 2
Kamar Mandi: 1
a. Atap
Metal Pasir
b. Dinding
Bata Ringan (Double Wall)
c. Lantai & Pondasi
60x60 & Batu, Slof Beton, Pondasi Menerus


Harga: Rp 229.320.632
Luas Bangunan: 22m 2
Luas Lahan: 72m 2
Kamar Tidur: 2
Kamar Mandi: 1
a. Atap
Metal Pasir
b. Dinding
Bata Ringan (Double Wall)
c. Lantai & Pondasi
60x60 & Batu, Slof Beton, Pondasi Menerus


Harga: Rp 210.858.400
Luas Bangunan: 22m 2
Luas Lahan: 60m 2
Kamar Tidur: 1
Kamar Mandi: 1
a. Atap
Metal Pasir
b. Dinding
Bata Ringan (Double Wall)
c. Lantai & Pondasi
40x40 & Batu, Slof Beton, Pondasi Menerus


Harga: Rp 264.449.158
Luas Bangunan: 27m 2
Luas Lahan: 72m 2
Kamar Tidur: 2
Kamar Mandi: 1
a. Atap
Metal Pasir
b. Dinding
Bata Ringan
c. Lantai & Pondasi
60x60 & Batu, Slof Beton, Pondasi Menerus


Harga: Rp 229.480.632
Luas Bangunan: 22m 2
Luas Lahan: 72m 2
Kamar Tidur: 2
Kamar Mandi: 1
a. Atap
Metal Pasir
b. Dinding
Bata Ringan (double wall)
c. Lantai & Pondasi
60x60 & Batu, Slof Beton, Pondasi Menerus


Harga: Rp 431.556.183
Luas Bangunan: 52m 2
Luas Lahan: 96m 2
Kamar Tidur: 2
Kamar Mandi: 1
a. Atap
Metal Pasir
b. Dinding
Bata Ringan (Double Wall)
c. Lantai & Pondasi
HT 60x60 & Batu, Slof Beton, Pondasi Menerus


Harga: Rp 373.178.183
Luas Bangunan: 27m 2
Luas Lahan: 108m 2
Kamar Tidur: 2
Kamar Mandi: 1
a. Atap
Metal Pasir
b. Dinding
Bata Ringan
c. Lantai & Pondasi
60x60 & Batu, Slof Beton, Pondasi Menerus


Harga: Rp 337.979.683
Luas Bangunan: 22m 2
Luas Lahan: 108m 2
Kamar Tidur: 2
Kamar Mandi: 1
a. Atap
Metal Pasir
b. Dinding
Bata Ringan
c. Lantai & Pondasi
60x60 & Batu, Slof Beton, Pondasi Menerus


Harga: Rp 396.658.158
Luas Bangunan: 36m 2
Luas Lahan: 96m 2
Kamar Tidur: 2
Kamar Mandi: 1
a. Atap
Metal Pasir
b. Dinding
Bata Ringan (double wall)
c. Lantai & Pondasi
60x60 & Batu, Slof Beton, Pondasi Menerus


Harga: Rp 300.616.250
Luas Bangunan: 22m 2
Luas Lahan: 90m 2
Kamar Tidur: 2
Kamar Mandi: 1
a. Atap
Metal Pasir
b. Dinding
Bata Ringan
c. Lantai & Pondasi
60x60 & Batu, Slof Beton, Pondasi Menerus


Harga: Rp 394.217.500
Luas Bangunan: 22m 2
Luas Lahan: 121m 2
Kamar Tidur: 2
Kamar Mandi: 1
a. Atap
Metal Pasir
b. Dinding
Bata Ringan
c. Lantai & Pondasi
60x60 & Batu, Slof Beton, Pondasi Menerus


Harga: Rp 376.106.667
Luas Bangunan: 22m 2
Luas Lahan: 115m 2
Kamar Tidur: 2
Kamar Mandi: 1
a. Atap
Metal Pasir
b. Dinding
Bata Ringan
c. Lantai & Pondasi
60x60 & Batu, Slof Beton, Pondasi Menerus


Harga: Rp 347.775.000
Luas Bangunan: 27m 2
Luas Lahan: 102m 2
Kamar Tidur: 2
Kamar Mandi: 1
a. Atap
Metal Pasir
b. Dinding
Bata Ringan
c. Lantai & Pondasi
60x60 & Batu, Slof Beton, Pondasi Menerus


Harga: Rp 536.185.833
Luas Bangunan: 27m 2
Luas Lahan: 162m 2
Kamar Tidur: 2
Kamar Mandi: 1
a. Atap
Metal Pasir
b. Dinding
Bata Ringan
c. Lantai & Pondasi
60x60 & Batu, Slof Beton, Pondasi Menerus


Harga: Rp 462.970.000
Luas Bangunan: 22m 2
Luas Lahan: 149m 2
Kamar Tidur: 2
Kamar Mandi: 1
a. Atap
Metal Pasir
b. Dinding
Bata Ringan
c. Lantai & Pondasi
60x60 & Batu, Slof Beton, Pondasi Menerus


Harga: Rp 452.412.500
Luas Bangunan: 22m 2
Luas Lahan: 145m 2
Kamar Tidur: 2
Kamar Mandi: 1
a. Atap
Metal Pasir
b. Dinding
Bata Ringan
c. Lantai & Pondasi
60x60 & Batu, Slof Beton, Pondasi Menerus


Harga: Rp 527.107.233
Luas Bangunan: 36m 2
Luas Lahan: 148m 2
Kamar Tidur: 2
Kamar Mandi: 1
a. Atap
Metal Pasir
b. Dinding
Bata Ringan
c. Lantai & Pondasi
60x60 & Batu, Slof Beton, Pondasi Menerus


Harga: Rp 850.418.333
Luas Bangunan: 36m 2
Luas Lahan: 255m 2
Kamar Tidur: 2
Kamar Mandi: 1
a. Atap
Metal Pasir
b. Dinding
Bata Ringan
c. Lantai & Pondasi
60x60 & Batu, Slof Beton, Pondasi Menerus


Harga: Rp 430.440.133
Luas Bangunan: 36m 2
Luas Lahan: 116m 2
Kamar Tidur: 2
Kamar Mandi: 1
a. Atap
Metal Pasir
b. Dinding
Bata Ringan
c. Lantai & Pondasi
60x60 & Batu, Slof Beton, Pondasi Menerus


Harga: Rp 406.273.358
Luas Bangunan: 36m 2
Luas Lahan: 108m 2
Kamar Tidur: 2
Kamar Mandi: 1
a. Atap
Metal Pasir
b. Dinding
Bata Ringan
c. Lantai & Pondasi
60x60 & Batu, Slof Beton, Pondasi Menerus
Jl. Sarwani, Desa Mekarsari Kec. Jambe Kab. Tangerang, Banten no. - BANTEN, KAB TANGERANG, Jambe, Mekarsari
Telp : 021-37937139
Email : unggul.budilestari@yahoo.com
Website : -