ID Lokasi : TGR1220082024T001
BANTEN, KAB TANGERANG, Pasar Kemis, Sukamantri
PT DELTACENDANA CITAPERSADA
REAL ESTATE INDONESIA
(REI)
Subsidi : 0 Unit
Terjual Subsidi : 0 Unit
Komersil : 0 Unit
Terjual Komersil : 2 Unit
Lihat Siteplan DigitalMarketing Gallery Puri Jaya, Jln. Raya Cadas-Kukun no. 88 BANTEN, KAB TANGERANG, Pasar Kemis, Pangadegan
Telp : 021-5908888
Email : deltacendana@gmail.com
Website : www.purijaya.com





Harga: Rp 547.772.679
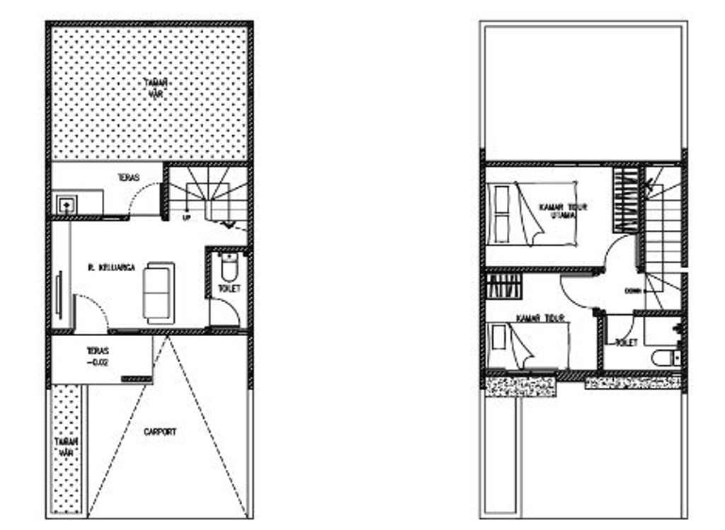
Luas Bangunan: 41m 2
Luas Lahan: 60m 2
Kamar Tidur: 2
Kamar Mandi: 2
a. Atap
Baja Ringan
b. Dinding
Bata Merah + Plester Aci
c. Lantai & Pondasi
Keramik & Batu Kali & Mini Pile
Harga: Rp 513.967.158
Luas Bangunan: 41m 2
Luas Lahan: 60m 2
Kamar Tidur: 2
Kamar Mandi: 2
a. Atap
BAJA RINGAN
b. Dinding
BATA MERAH + PLESTER ACI
c. Lantai & Pondasi
KERAMIK & BATU KALI & MINIPILE


Harga: Rp 639.828.366
Luas Bangunan: 36m 2
Luas Lahan: 122m 2
Kamar Tidur: 2
Kamar Mandi: 1
a. Atap
Baja Ringan
b. Dinding
Bata Merah + Plester Aci
c. Lantai & Pondasi
Keramik & Batu Kali & Mini Pile
Marketing Gallery Puri Jaya, Jln. Raya Cadas-Kukun no. 88 BANTEN, KAB TANGERANG, Pasar Kemis, Pangadegan
Telp : 021-5908888
Email : deltacendana@gmail.com
Website : www.purijaya.com