ID Lokasi : TJS0520032025T001
KALIMANTAN UTARA, KAB BULUNGAN, Tanjung Selor, Jelarai Selor
PT REVANINDO BORNEO SEJATI
PERKUMPULAN ASOSIASI PENGEMBANG PERUMAHAN DAN PERMUKIMAN SELURUH INDONESIA
(APERSI)
Subsidi : 93 Unit
Terjual Subsidi : 28 Unit
Komersil : 0 Unit
Terjual Komersil : 0 Unit
Lihat Siteplan Digital




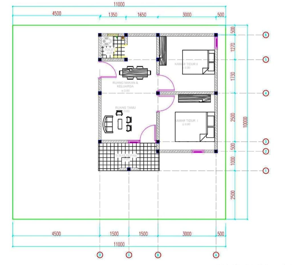
Harga: Rp 182.000.000
Luas Bangunan: 36m 2
Luas Lahan: 110m 2
Kamar Tidur: 2
Kamar Mandi: 1
a. Atap
rangka kayu,atap spandek.
b. Dinding
batako,plester,aci dan cat
c. Lantai & Pondasi
keramik 40 x 40 putih & pondasi batu gunung