ID Lokasi : TPG0210042025T009
KEPULAUAN RIAU, KOTA TANJUNG PINANG, Tanjung Pinang Timur, Batu IX
PT PRIMA KARYA ASIH
REAL ESTATE INDONESIA
(REI)
Subsidi : 71 Unit
Terjual Subsidi : 14 Unit
Komersil : 68 Unit
Terjual Komersil : 0 Unit
Lihat Siteplan Digital




Harga: Rp 173.000.000
Luas Bangunan: 36m 2
Luas Lahan: 84m 2
Kamar Tidur: 2
Kamar Mandi: 1
a. Atap
Spandek
b. Dinding
Batako, Plaster, Aci Halus dan Cat ( Luar )
Batako, Plaster, Aci Halus ( Dalam )
c. Lantai & Pondasi
Keramik & Plat Beton Setempat Sloof Beton


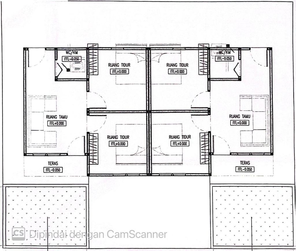
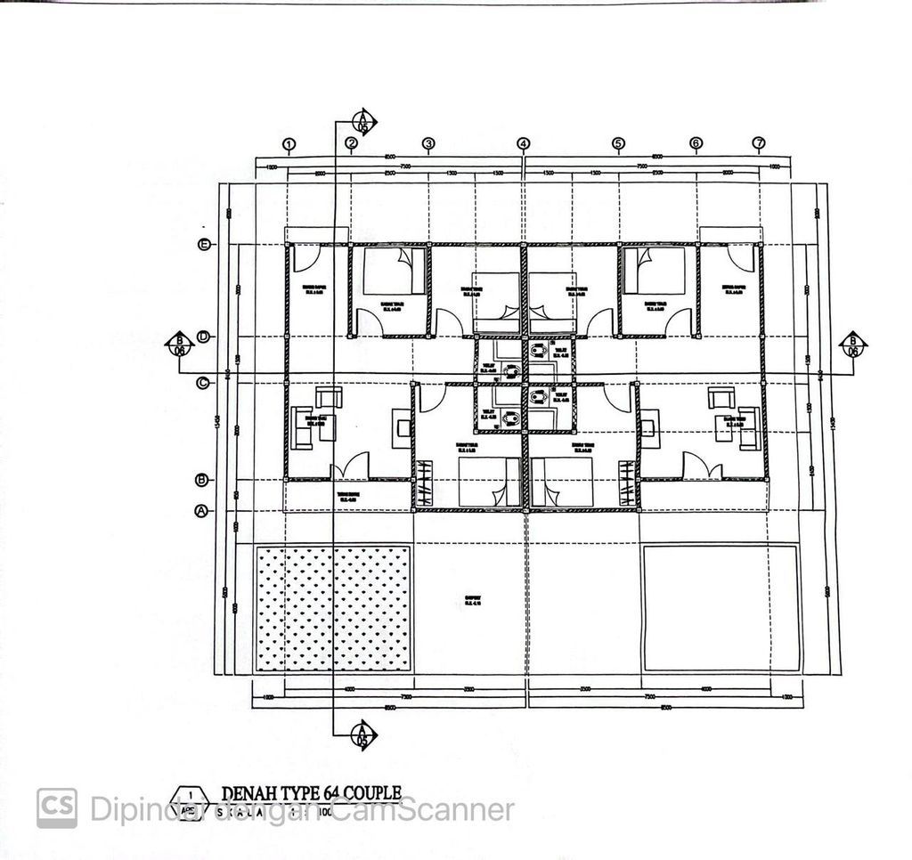
Harga: Rp 350.000.000
Luas Bangunan: 64m 2
Luas Lahan: 140m 2
Kamar Tidur: 3
Kamar Mandi: 1
a. Atap
Spandek
b. Dinding
Bata Merah, Plaster, Aci Halus dan Cat ( Luar )
Bata Merah, Plaster, Aci Halus dan Cat ( Dalam )
c. Lantai & Pondasi
Keramik & Plat Beton Setempat Sloof Beton


Harga: Rp 285.000.000
Luas Bangunan: 45m 2
Luas Lahan: 105m 2
Kamar Tidur: 2
Kamar Mandi: 1
a. Atap
Spandek
b. Dinding
Bata merah, Plaster, Aci Halus dan Cat ( Luar )
Bata merah, Plaster, Aci Halus
c. Lantai & Pondasi
Keramik & Plat Beton Setempat Sloog Beton