ID Lokasi : TPG0210052026T002
KEPULAUAN RIAU, KOTA TANJUNG PINANG, Tanjung Pinang Timur, Pinang Kencana
PT KENCANA PASIA ABADI
REAL ESTATE INDONESIA
(REI)
Subsidi : 157 Unit
Terjual Subsidi : 37 Unit
Komersil : 0 Unit
Terjual Komersil : 1 Unit
Lihat Siteplan DigitalRuko Ganet Center Blok A no. 5-6 KEPULAUAN RIAU, KOTA TANJUNG PINANG, Tanjung Pinang Timur, Pinang Kencana
Telp : 081261919111
Email : kencanapasiaabadi@gmail.com

Harga: Rp 173.000.000
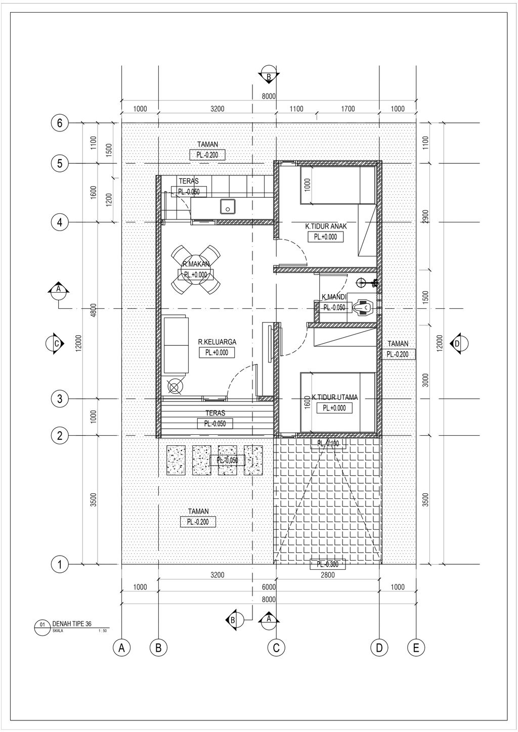
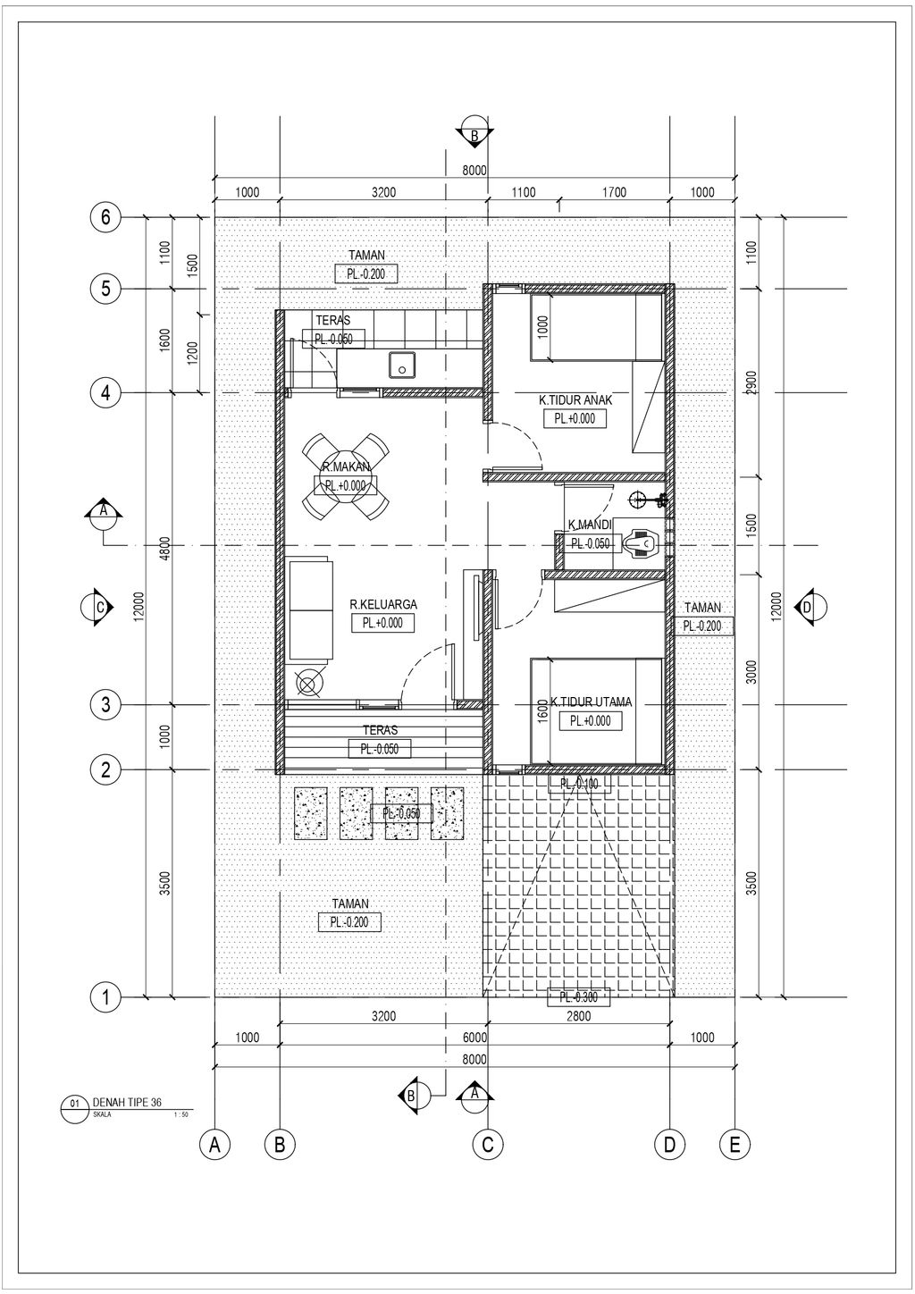
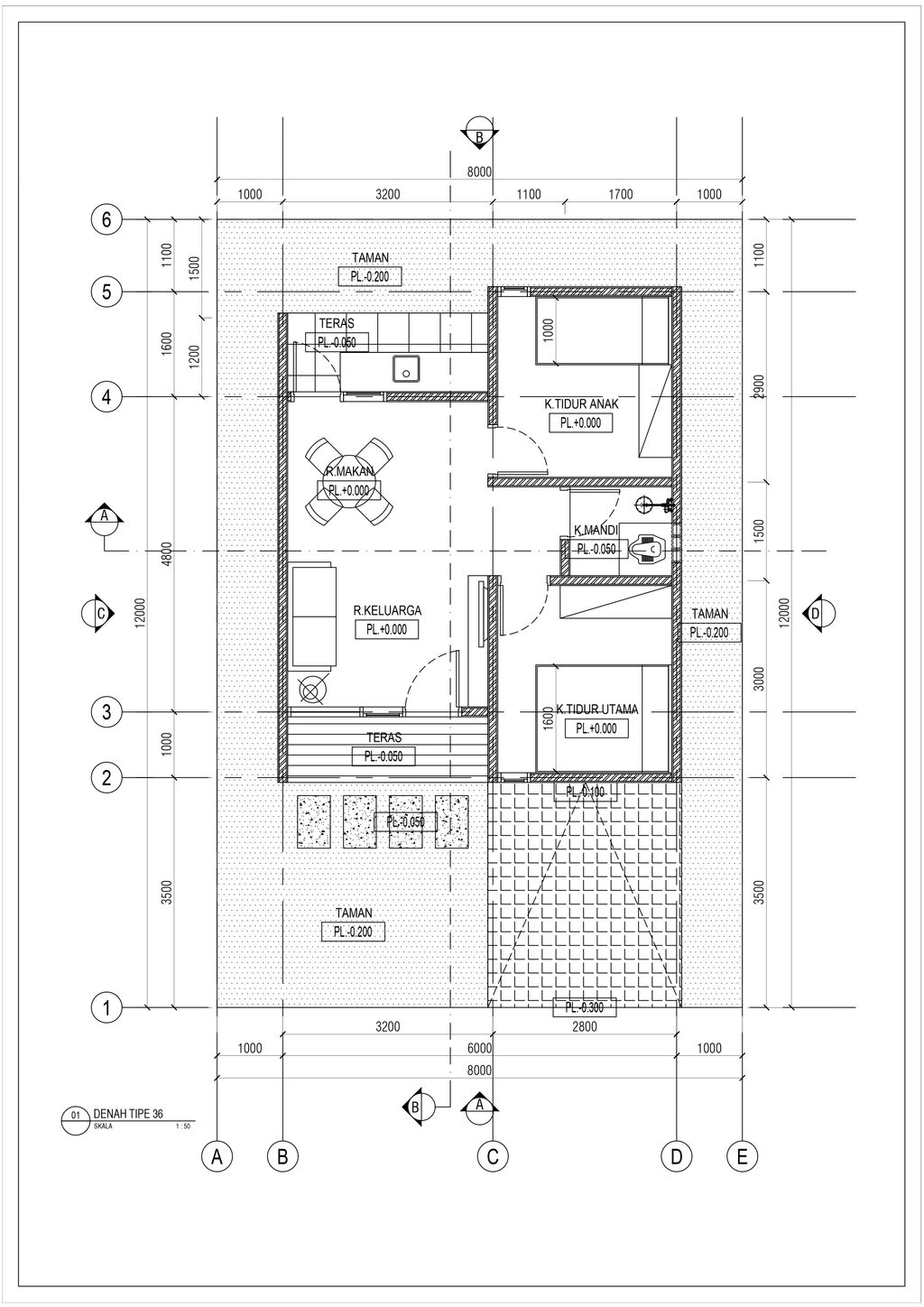
Luas Bangunan: 36m 2
Luas Lahan: 96m 2
Kamar Tidur: 2
Kamar Mandi: 1
a. Atap
BAJA RINGAN FINISHING SPANDEK LURUS
b. Dinding
BATAKO DI PLESTER LUAR DAN DALAM
c. Lantai & Pondasi
KERAMIK 40X40 & TAPAK BETON BERTULANG


Harga: Rp 173.000.000
Luas Bangunan: 36m 2
Luas Lahan: 104m 2
Kamar Tidur: 2
Kamar Mandi: 1
a. Atap
Atap Sapndek baja ringan
b. Dinding
Batako Padat
c. Lantai & Pondasi
Lantai Keramik & Cor Beton


Harga: Rp 168.000.000
Luas Bangunan: 36m 2
Luas Lahan: 91m 2
Kamar Tidur: 2
Kamar Mandi: 1
a. Atap
BAJA RINGAN + SPANDEK LURUS
b. Dinding
BATAKO DI PLESTER DAN FINISH CAT
c. Lantai & Pondasi
KERAMIK 40X40 & TAPAK BETON BERTULANG


Harga: Rp 173.000.000
Luas Bangunan: 36m 2
Luas Lahan: 98m 2
Kamar Tidur: 2
Kamar Mandi: 1
a. Atap
Atap baja ringan dan spandek
b. Dinding
Batako, sudah plaster sampai pengecatan
c. Lantai & Pondasi
full keramik & Beton
Ruko Ganet Center Blok A no. 5-6 KEPULAUAN RIAU, KOTA TANJUNG PINANG, Tanjung Pinang Timur, Pinang Kencana
Telp : 081261919111
Email : kencanapasiaabadi@gmail.com