ID Lokasi : TRW0120092024T001
            
            SULAWESI TENGGARA, KAB KOLAKA TIMUR, Tirawuta, Orawa
            
            LANGGAI TUNGGAL PERKASA
            
            REAL ESTATE INDONESIA
            (REI)
          
Subsidi : 25 Unit
Terjual Subsidi : 6 Unit
Komersil : 0 Unit
Terjual Komersil : 0 Unit
Lihat Siteplan Digital




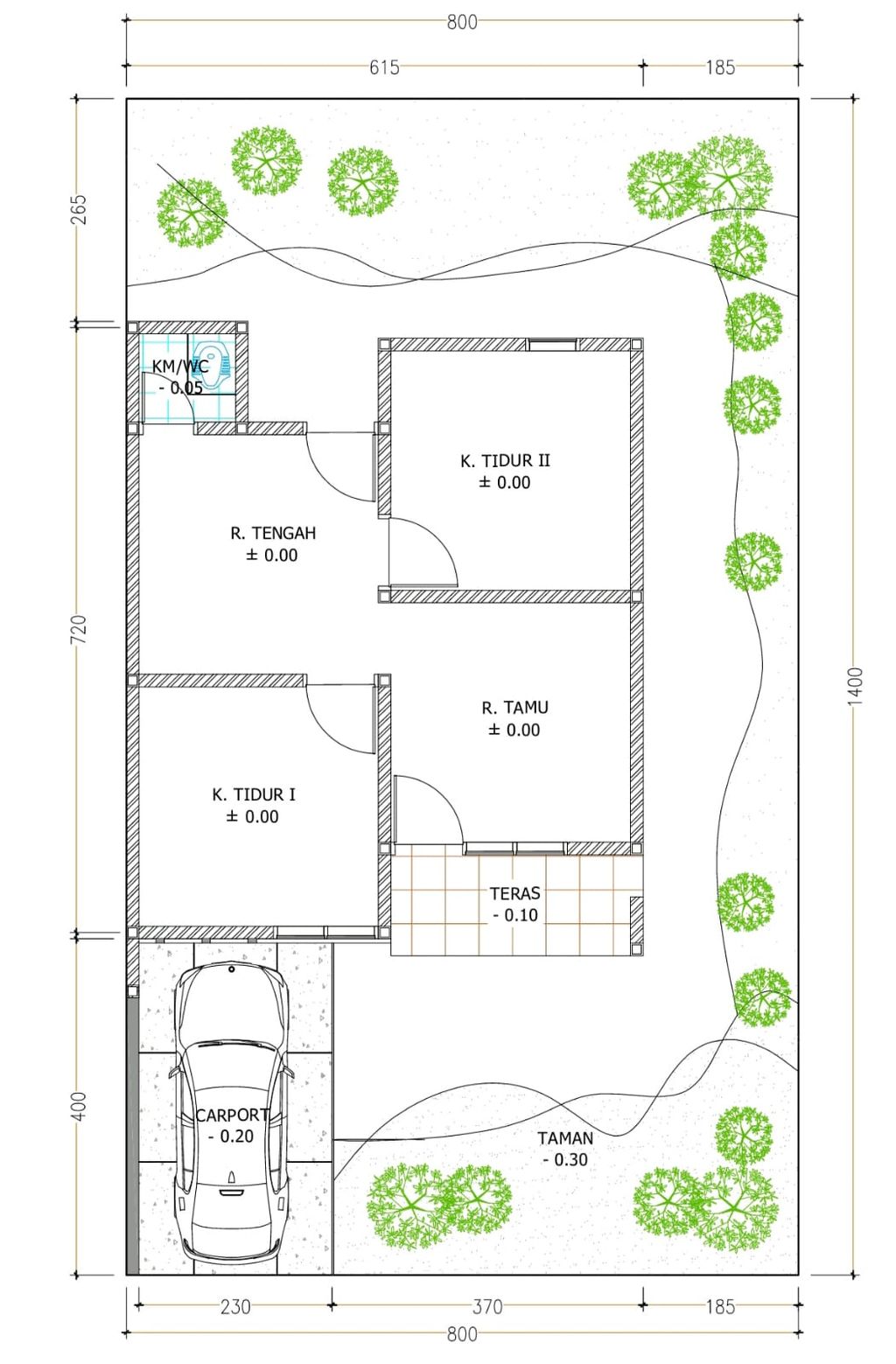
Harga: Rp 173.000.000
Luas Bangunan: 36m 2
Luas Lahan: 112m 2
Kamar Tidur: 2
Kamar Mandi: 1
a. Atap
                      
                      spandek
b. Dinding
                      
                      batako diplester dan dicat
c. Lantai & Pondasi
                      
                      tapak beton bertulang & semen halus