ID Lokasi : WSB1120022025T001
JAWA TENGAH, KAB WONOSOBO, Mojotengah, candirejo
PT ALFAZZA BERKAH BERSAMA
Himpunan Pengembang Permukiman dan Perumahan Rakyat
(HIMPERRA)
Subsidi : 28 Unit
Terjual Subsidi : 26 Unit
Komersil : 5 Unit
Terjual Komersil : 1 Unit
Lihat Siteplan Digital




Harga: Rp 166.000.000
Luas Bangunan: 30m 2
Luas Lahan: 60m 2
Kamar Tidur: 2
Kamar Mandi: 1
a. Atap
Rangka atap Baja Ringan, Mutiroof Spandek Pasir
b. Dinding
Bata Ringan Plester Aci
c. Lantai & Pondasi
Keramik Granit Tale & Batu kali, Struktur beton Bertulang


Harga: Rp 166.000.000
Luas Bangunan: 30m 2
Luas Lahan: 72m 2
Kamar Tidur: 2
Kamar Mandi: 1
a. Atap
Rangka Atap Baja Ringan, Multiroof Spandek Pasir
b. Dinding
Bata Ringan, Plaster Aci
c. Lantai & Pondasi
Keramik Granit Tale & Batu Kali, Struktur Beton Bertulang


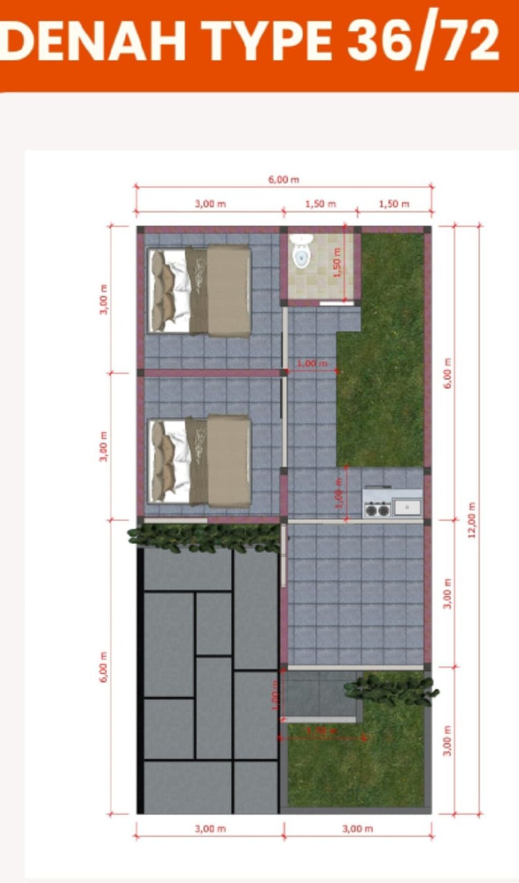
Harga: Rp 235.000.000
Luas Bangunan: 36m 2
Luas Lahan: 72m 2
Kamar Tidur: 2
Kamar Mandi: 1
a. Atap
Rangka Atap Baja Ringan, Penutup Atap Multiroof Spandek Pasir
b. Dinding
Bata Ringan, Plester Aci
c. Lantai & Pondasi
Keramik Granit Tale & Batu kali Struktur Beton Bertulang


Harga: Rp 370.000.000
Luas Bangunan: 75m 2
Luas Lahan: 66m 2
Kamar Tidur: 2
Kamar Mandi: 2
a. Atap
Rangka Atap Baja Ringan, Multiroof Spandek Pasir
b. Dinding
Bata ringan, Plaster Aci
c. Lantai & Pondasi
Keramik Granit Tale cor beton Bertulang & Batu Kali, Struktur Beton Bertulang


Harga: Rp 166.000.000
Luas Bangunan: 36m 2
Luas Lahan: 113m 2
Kamar Tidur: 2
Kamar Mandi: 1
a. Atap
Rangka Atap Baja Ringan, Multiroof Spandek Pasir
b. Dinding
Bata Ringan Plester Aci
c. Lantai & Pondasi
Kramik Granit Tale & Batu kali, Struktur Beton Bertulang


Harga: Rp 166.000.000
Luas Bangunan: 36m 2
Luas Lahan: 72m 2
Kamar Tidur: 2
Kamar Mandi: 1
a. Atap
Sepandek pasir, rangka baja ringan
b. Dinding
herbel atau bata ringan
c. Lantai & Pondasi
keramik granit tale & batu kali


Harga: Rp 166.000.000
Luas Bangunan: 30m 2
Luas Lahan: 81m 2
Kamar Tidur: 2
Kamar Mandi: 2
a. Atap
spandek pasir
b. Dinding
bata herbel
c. Lantai & Pondasi
kermik granit tale & batu kali