ID Lokasi : WTP2210022025T003
SULAWESI SELATAN, KAB BONE, Tanete Riattang Barat, Matirro Walie
PT GAHARA MULIA PROPERTI
Himpunan Pengembang Permukiman dan Perumahan Rakyat
(HIMPERRA)
Subsidi : 108 Unit
Terjual Subsidi : 5 Unit
Komersil : 0 Unit
Terjual Komersil : 0 Unit
Lihat Siteplan DigitalJalan Letjend. Soekawati no. 19 SULAWESI SELATAN, KAB BONE, Tanete Riattang, Manurunge
Telp : 085299512238
Email : pt.gaharamuliaproperti@gmail.com
Website : -





Harga: Rp 173.000.000
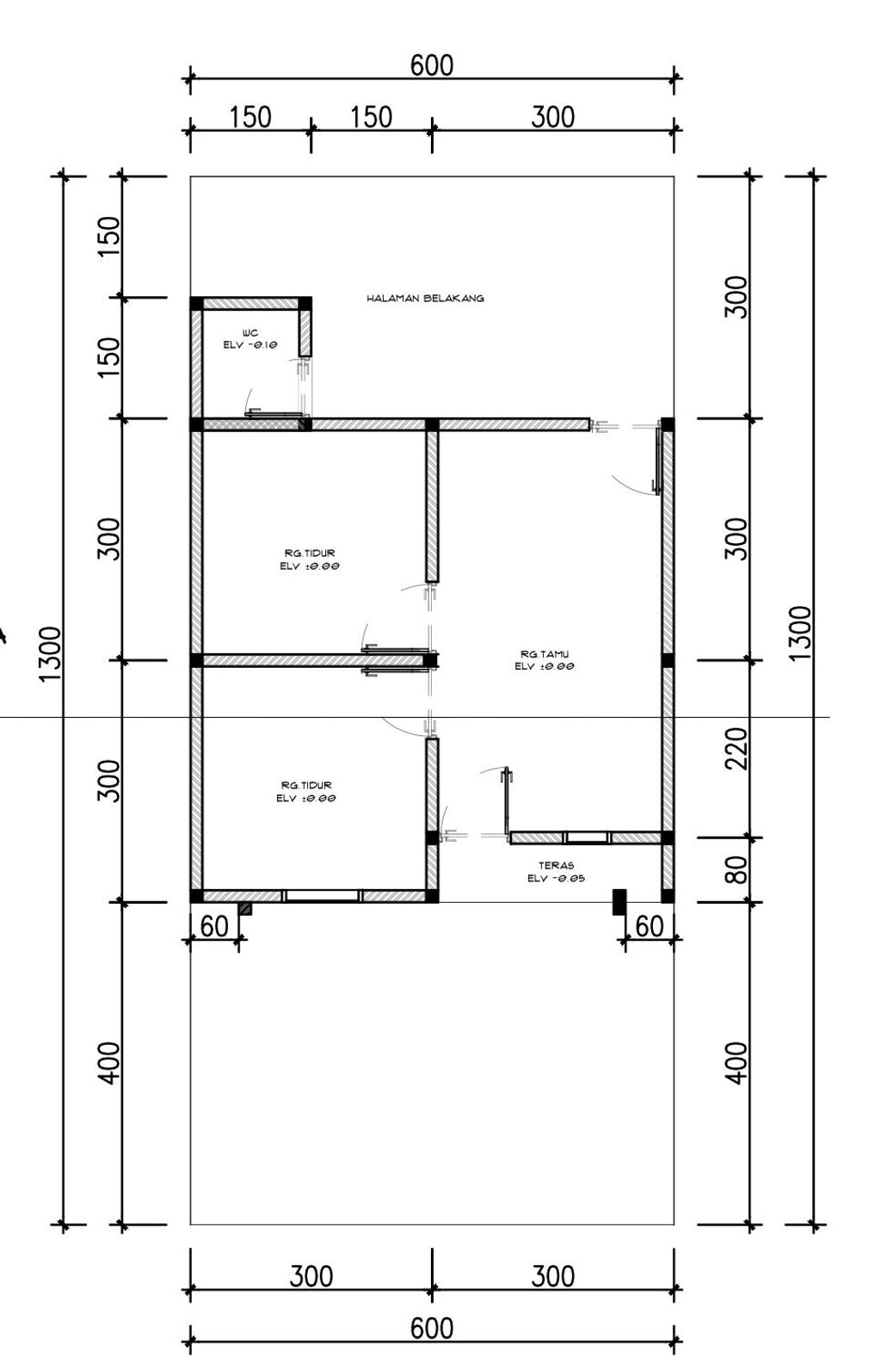
Luas Bangunan: 36m 2
Luas Lahan: 78m 2
Kamar Tidur: 2
Kamar Mandi: 1
a. Atap
RANGKA BAJA RINGAN ATAP SPANDEK
b. Dinding
BATU BATA MERAH PLASTER ACIAN CAT
c. Lantai & Pondasi
KERAMIK 40X40 & BATU GUNUNG
Jalan Letjend. Soekawati no. 19 SULAWESI SELATAN, KAB BONE, Tanete Riattang, Manurunge
Telp : 085299512238
Email : pt.gaharamuliaproperti@gmail.com
Website : -